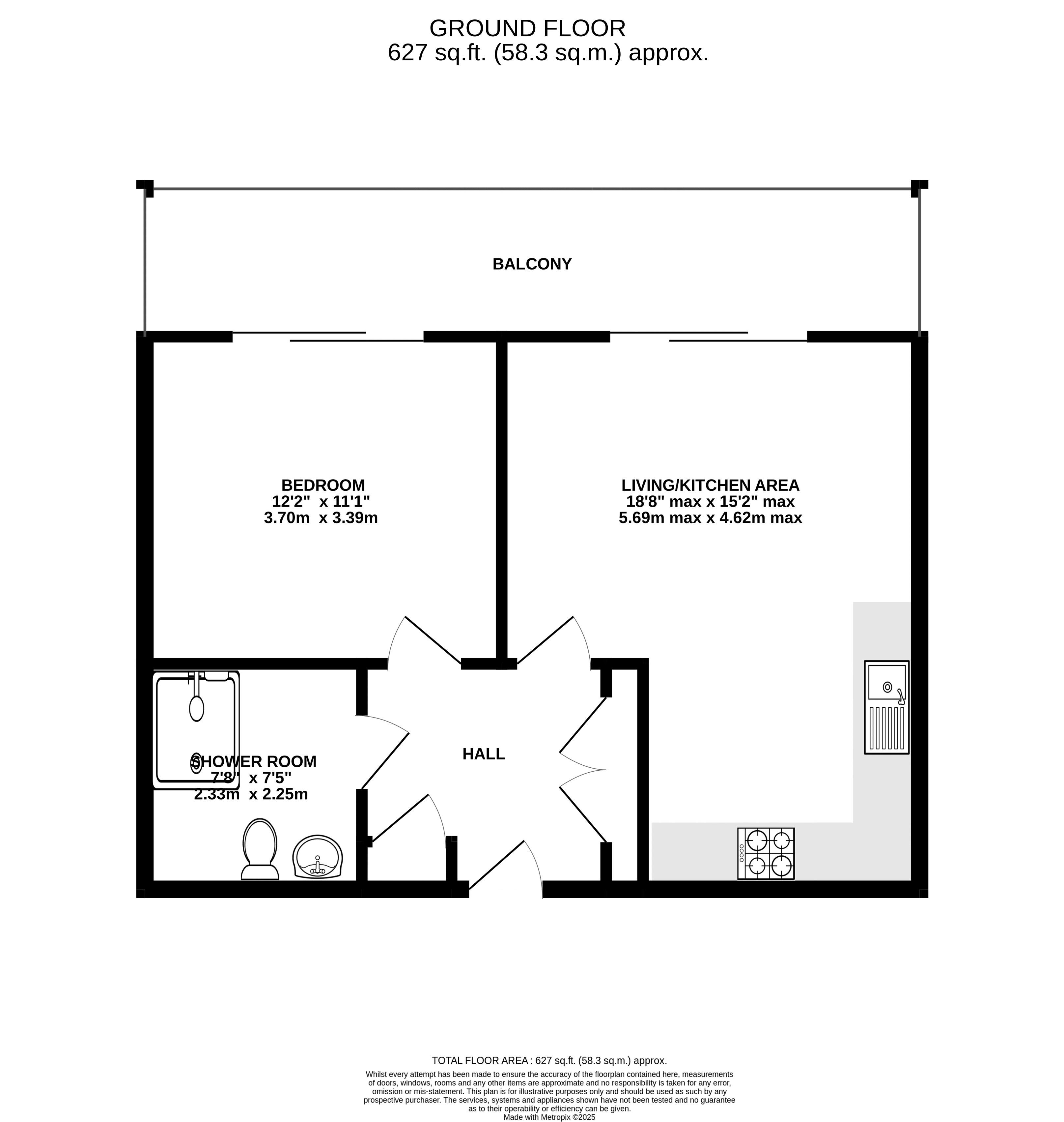
**GUIDE PRICE £155,000 - £160,000**. Iconic are delighted to market this beautifully finished one-bedroom city centre apartment which showcases modern living at its very best. With a thoughtful layout and stylish upgrades throughout this great property is also offered with the benefit of no onward chain. From the moment you enter, the warmth of quality wooden flooring welcomes you into a space that feels both inviting and refined. The heart of the home is a newly installed Shaker-style kitchen, where classic cabinetry meets contemporary chrome detailing. Fully equipped with integrated appliances, it’s designed for both everyday use and effortless entertaining. A recently fitted, sleek shower room and built-in wardrobes from John Lewis in the bedroom add a luxurious touch, complementing the apartment’s clean lines and fresh décor. A real highlight is the expansive private balcony, accessible from both the living room and bedroom. Offering uninterrupted views across the city skyline, it’s an ideal spot to unwind, from morning coffee to evening drinks, it’s a space that truly elevates urban living. Residents benefit from lift access, secure digital entry, and a private storage room, adding convenience and peace of mind. With communal rooftop gardens also available for relaxing outdoors, this is a turn-key home that perfectly suits professionals, first-time buyers, or anyone looking for stylish city-centre living with a standout outdoor space.
Agents Notes: 107 years remain on the lease. £1700 annual service charges.
Read more
**GUIDE PRICE £155,000 - £160,000**. Iconic are delighted to market this beautifully finished one-bedroom city centre apartment which showcases modern living at its very best. With a thoughtful layout and stylish upgrades throughout this great property is also offered with the benefit of no onward chain. From the moment you enter, the warmth of quality wooden flooring welcomes you into a space that feels both inviting and refined. The heart of the home is a newly installed Shaker-style kitchen, where classic cabinetry meets contemporary chrome detailing. Fully equipped with integrated appliances, it’s designed for both everyday use and effortless entertaining. A recently fitted, sleek shower room and built-in wardrobes from John Lewis in the bedroom add a luxurious touch, complementing the apartment’s clean lines and fresh décor. A real highlight is the expansive private balcony, accessible from both the living room and bedroom. Offering uninterrupted views across the city skyline, it’s an ideal spot to unwind, from morning coffee to evening drinks, it’s a space that truly elevates urban living. Residents benefit from lift access, secure digital entry, and a private storage room, adding convenience and peace of mind. With communal rooftop gardens also available for relaxing outdoors, this is a turn-key home that perfectly suits professionals, first-time buyers, or anyone looking for stylish city-centre living with a standout outdoor space.
Agents Notes: 107 years remain on the lease. £1700 annual service charges.
Read less
Important Information
- This is a Leasehold property.
| One-Bedroom Apartment In The City Centre |
Newly Fitted Shaker-Style Kitchen With Integrated Appliances. |
| Modern Shower Room And Built-In John Lewis Wardrobes. |
Warm Wooden Floors Throughout Creating An Inviting Feel. |
| Large Private Balcony With City Skyline Views. |
Lift Access, Secure Entry And Private Storage Room. |
| Communal Rooftop gardens for relaxation. |
Ideal For Professionals Or First-Time Buyers Seeking City Living. |
| Offered With No Onward Chain |
EPC Rating / Council Tax Band B |