4 bedroom House for sale in Norwich

 

Meadowsweet, Horsford, Norwich

Asking Price £375,000

4 Bedroom House

Ref: EAXML11851_12792842

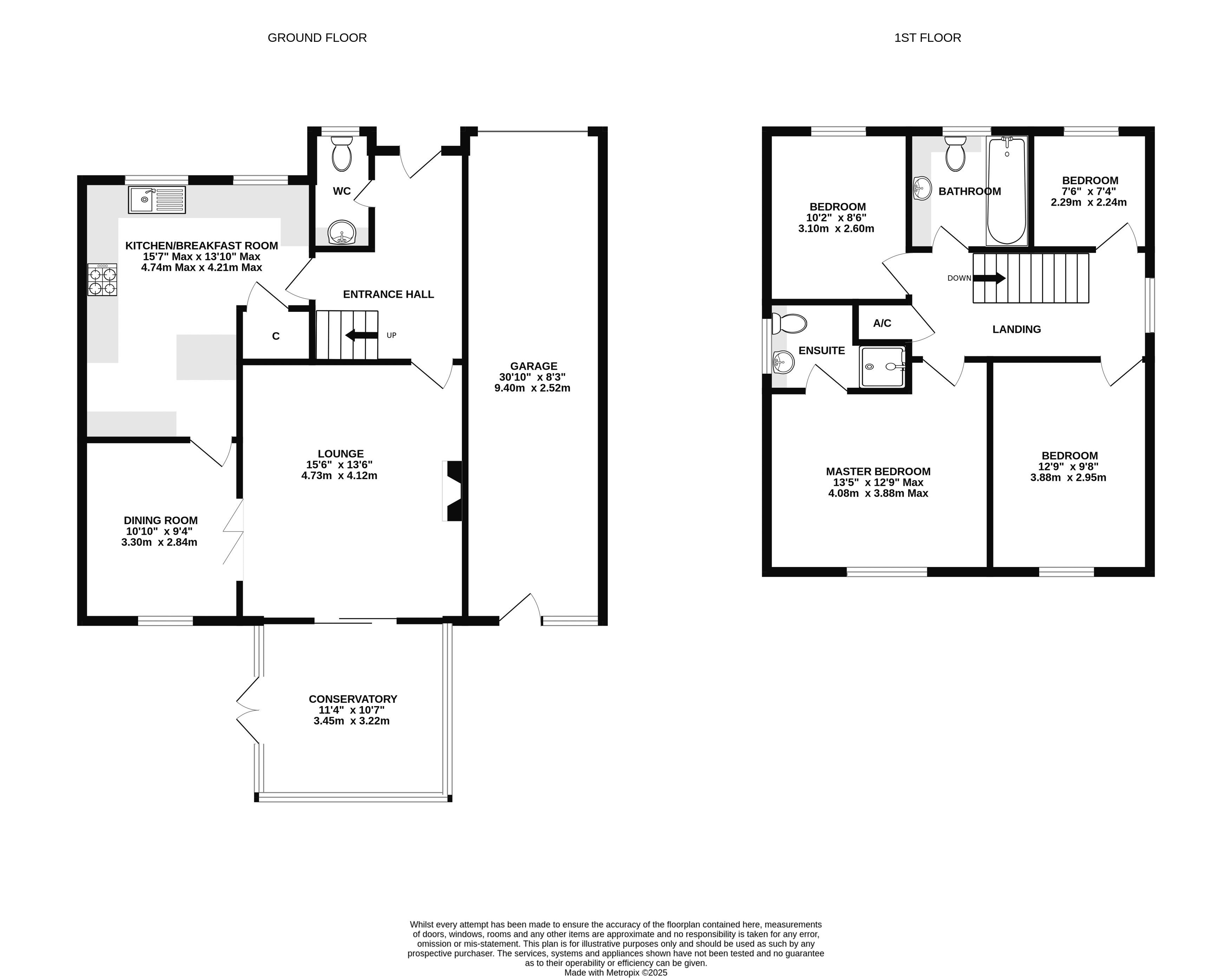
***EARLY VIEWINGS STRONGLY ADVISED*** Set within a quiet cul-de-sac in the popular village of Horsford, this well-presented four-bedroom detached family home offers spacious, modern accommodation throughout and is ideal for growing families. The property welcomes you with an entrance hall featuring a re-fitted cloakroom and stairs rising to the first floor. The heart of the home is the stylish re-fitted kitchen/breakfast room, complemented by a separate dining room perfect for family meals or entertaining. A spacious lounge provides a comfortable living area and leads through to the conservatory, complete with a cosy roof, creating an inviting space to enjoy year-round. Upstairs, the property offers four well-proportioned bedrooms off the landing. The master bedroom benefits from both fitted wardrobes and a re-fitted en-suite shower room, while the remaining bedrooms are served by a modern re-fitted family bathroom off the landing. Outside, the home boasts ample off-road parking via a brick-weave driveway leading to an attached double tandem garage. The south-facing rear garden is enclosed by panel fencing and designed for low maintenance, providing a private and sunny outdoor space. There is also rear access to the garage and side access to the front. Situated in a desirable cul-de-sac location, this superb family home offers comfortable, updated living just a short distance from local amenities, schools, and transport links.

Read more

Important Information

  • This is a Freehold property.
Well Presented Detached Family Home Four Bedrooms
Re-Fitted Kitchen/Breakfast Room Spacious Lounge & Separate Dining Road
Conservatory With Cosy Roof Re-Fitted Family Bathroom & En-Suite
South Facing Rear Garden Ample Parking & Tandem Garage
Sought After Cul-de-Sac Position Epc Rating Tbc / Council Tax Band D
Sorry! An EPC is not available for this property.

Iconic

Iconic

297 Fakenham Road

Taverham

Norwich

Norfolk

NR8 6LE

United Kingdom

Tel: 01603 261104
E-Mail: contactus@iconic.uk.com

Arrange a Viewing Videoette Brochure Printable Details Request a Phone Call Request Details E-Mail Agent
Update Cookies Preferences