4 bedroom Semi-Detached House for sale in Norwich

 

Middletons Lane, Hellesdon, Norwich

Guide Price £400,000

4 Bedroom Semi-Detached House

Ref: TAV04017

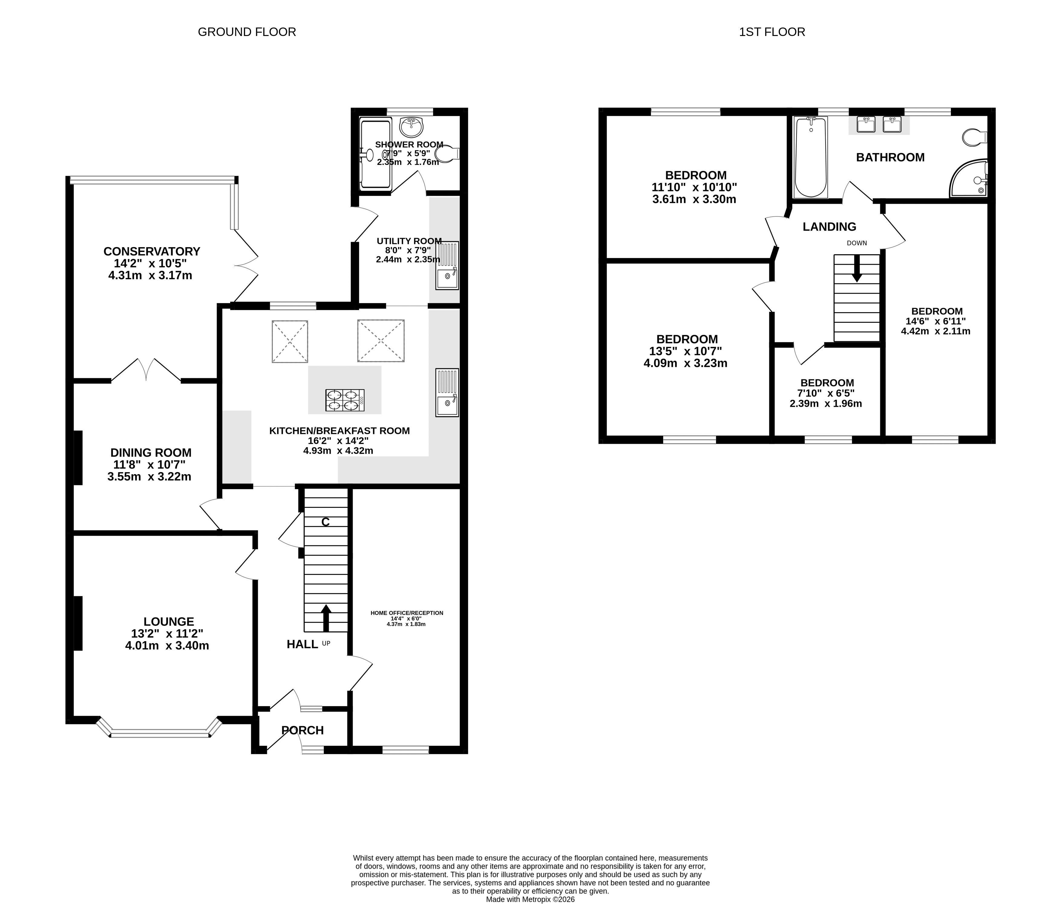
**GUIDE PRICE £400,000 - £425,000**. Situated in the highly sought-after area of Hellesdon, this beautifully extended four bedroom semi-detached home combines contemporary style with comfortable family living. Offering four generously proportioned bedrooms and two well-appointed bathrooms, the property provides an ideal setting for growing families seeking both space and sophistication. The home opens with a welcoming porch leading into a bright entrance hall. From here, you are drawn into the elegant bay-fronted lounge, perfect for relaxing evenings. The true centrepiece of the property is the impressive kitchen/breakfast room, thoughtfully designed with a central island and integrated appliances, creating a stylish and functional space for both everyday living and entertaining. Complimented by feature skylights this great entertaining space also has ample room for integrated appliances and has inset spotlights throughout. A separate utility room also benefits from a range of modern units with a door leading to the rear garden and a further door which leads to the modern ground-floor shower room which adds further practicality with a modern three piece suite. Additional living space is provided by a formal dining room with French doors that lead to the light-filled conservatory, offering flexibility for family gatherings, entertaining guests, or simply unwinding. There are additional French doors which lead to the rear garden. Upstairs, all four bedrooms are well-sized and designed with comfort in mind. The principal bathroom serves as a luxurious retreat, featuring a jacuzzi bath, separate shower enclosure, and twin basins with vanity unit, delivering both convenience and a touch of indulgence. Externally, the property continues to impress. The generous rear garden is predominantly laid to lawn and complemented by a raised decked terrace and a paved patio, ideal for outdoor dining and social occasions. A variety of mature planting, including fruit trees and established shrubs, enhances the overall sense of privacy and tranquillity. Further benefits include ample off-road parking for multiple vehicles via a shingled driveway and the added advantage of an electric vehicle charging point. This is a superb opportunity to acquire a stylish and spacious home in a desirable location, perfectly suited to modern family life.

Read more

Important Information

  • This is a Freehold property.
Located in the highly desirable area of Hellesdon Extended semi-detached home offering spacious and versatile living
Four well-proportioned bedrooms and two modern bathrooms Impressive kitchen/breakfast room with island and integrated appliances
Bay-fronted lounge Separate dining room, and bright conservatory
Generous rear garden with lawn, decked terrace, and patio area Ample off-road parking with electric vehicle charging point
Call now to view EPC Rating C / Council Tax Band C
Sorry! An EPC is not available for this property.

Iconic

Iconic

297 Fakenham Road

Taverham

Norwich

Norfolk

NR8 6LE

United Kingdom

Tel: 01603 261104
E-Mail: contactus@iconic.uk.com

Arrange a Viewing Videoette Brochure Printable Details Request a Phone Call Request Details E-Mail Agent
Update Cookies Preferences