3 bedroom Bungalow for sale in Norwich

 

Gowing Road, Hellesdon, Norwich.

Asking Price £310,000

3 Bedroom Bungalow

Ref: EAXML11851_12423132

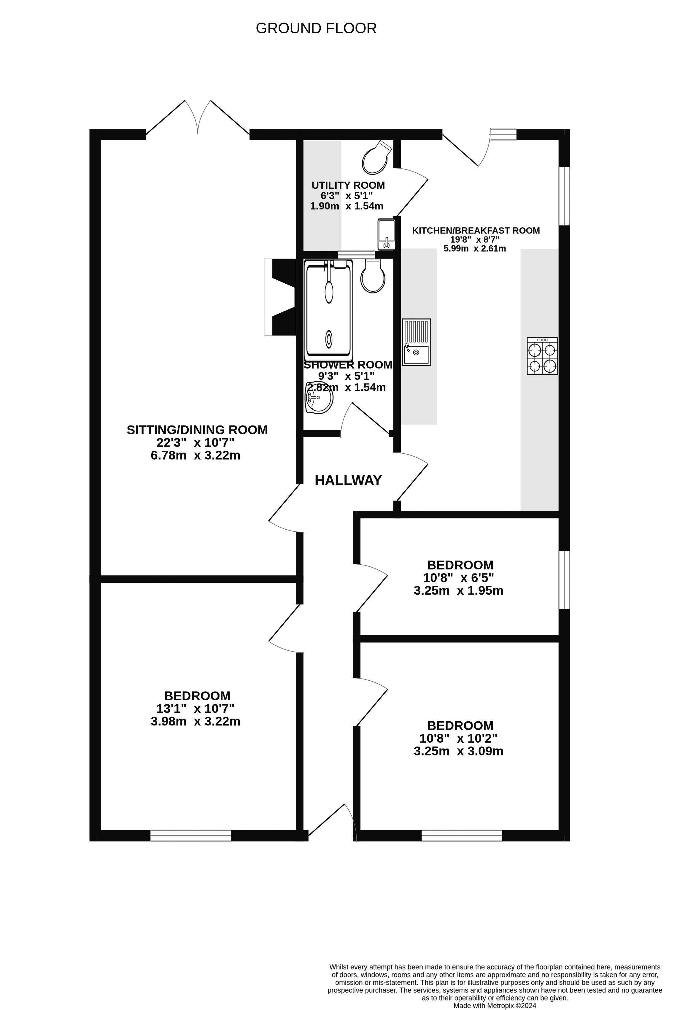
***EXTENDED MODERN BUNGALOW*** Iconic are pleased to market this attractive three bedroom semi-detached bungalow in the popular suburb of Hellesdon. Occupying a generous plot with a landscaped rear garden, this great home has been modernised throughout and viewing is essential. The accommodation comprises; entrance hallway with doors which lead to all principal rooms. The sitting/dining room is a generous size measuring in excess of 22’ with French doors leading to the landscaped garden to the rear. The kitchen/breakfast room has been fitted with a modern range of wall and base units with work surfaces above. With ample space for a dining table this great room also benefits from a utility room with W/C and doors to the rear aspect. There are three well proportioned bedrooms with two double rooms and one good size single. There is also a modern fitted shower room with three piece white suite. Outside to the rear there is a wonderful landscaped garden which is mainly laid to lawn with separate patio area and is all enclosed by timber fencing. To the front aspect there is a brick weave driveway providing ample off road parking and this also gives access to the single garage toward the rear of the property.

Read more

Important Information

  • This is a Freehold property.
Well Presented Semi Detached Bungalow Entrance Hallway
Three Good Size Bedrooms Modern Kitchen/Breakfast Room
Utility Room Spacious Lounge
Modern Shower Room Landscaped Rear Garden
Garage & Driveway Offering Ample Parking EPC Rating C / Council Tax Band C

epc

Iconic

Iconic

297 Fakenham Road

Taverham

Norwich

Norfolk

NR8 6LE

United Kingdom

Tel: 01603 261104
E-Mail: contactus@iconic.uk.com

Arrange a Viewing Videoette Brochure EPC Printable Details Request a Phone Call Request Details E-Mail Agent
Update Cookies Preferences