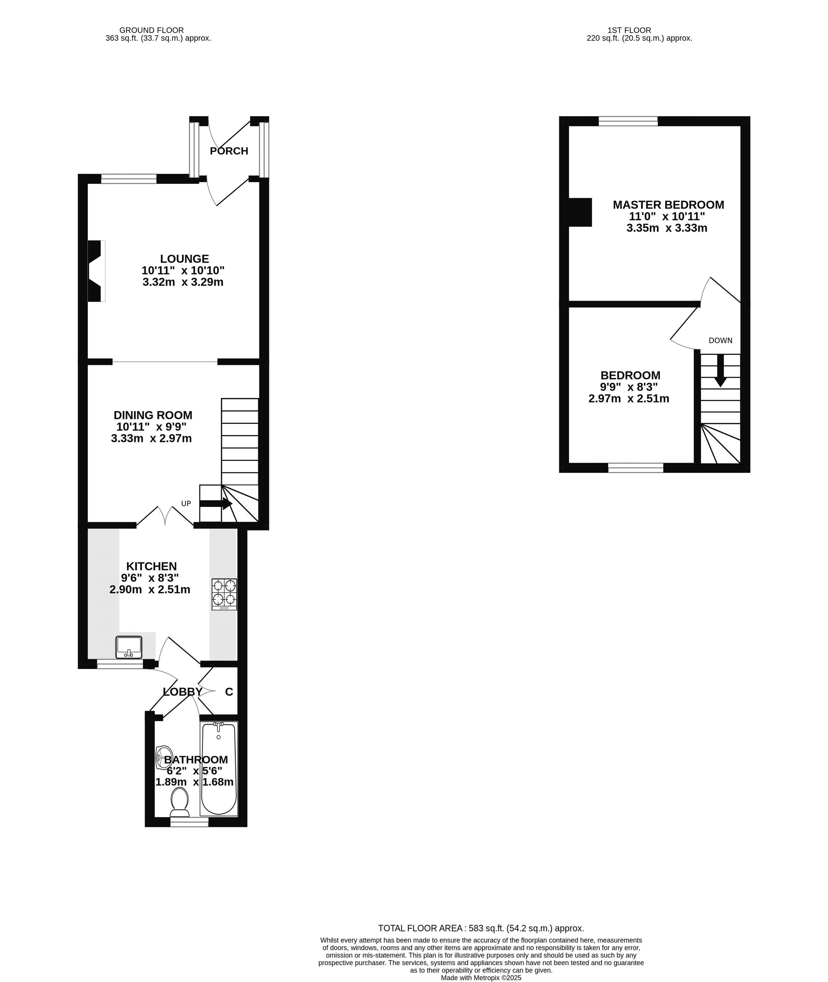
***Immaculately Presented Two Bedroom Character Cottage in Desirable Old Costessey*** Nestled in the heart of sought-after Old Costessey, this beautifully presented two bedroom character cottage seamlessly combines period charm with modern living. The property opens with a welcoming porch entrance leading into a cosy lounge featuring a wood-burning stove, perfect for those winter evenings. A separate dining room provides an ideal space for entertaining, while the modern cottage-style kitchen is fitted with a range of wall and base units, with work surface over and an inset Butler sink, offering both style and practicality. To the rear, a lobby area houses a modern boiler and provides access to the contemporary family bathroom, complete with a stylish three-piece suite and underfloor heating. Upstairs, there are two well-proportioned bedrooms accessed off the landing, each full of character and charm. Outside, the property benefits from off-road parking for one car to the front. To the rear, a mature enclosed garden offers a peaceful retreat, mainly laid to lawn with established shrubs and planting, complemented by a delightful summer house—perfect for relaxing or entertaining. This charming cottage is ideal for those seeking a blend of period features and modern convenience in one of Old Costessey’s most desirable locations.
Read more
***Immaculately Presented Two Bedroom Character Cottage in Desirable Old Costessey*** Nestled in the heart of sought-after Old Costessey, this beautifully presented two bedroom character cottage seamlessly combines period charm with modern living. The property opens with a welcoming porch entrance leading into a cosy lounge featuring a wood-burning stove, perfect for those winter evenings. A separate dining room provides an ideal space for entertaining, while the modern cottage-style kitchen is fitted with a range of wall and base units, with work surface over and an inset Butler sink, offering both style and practicality. To the rear, a lobby area houses a modern boiler and provides access to the contemporary family bathroom, complete with a stylish three-piece suite and underfloor heating. Upstairs, there are two well-proportioned bedrooms accessed off the landing, each full of character and charm. Outside, the property benefits from off-road parking for one car to the front. To the rear, a mature enclosed garden offers a peaceful retreat, mainly laid to lawn with established shrubs and planting, complemented by a delightful summer house—perfect for relaxing or entertaining. This charming cottage is ideal for those seeking a blend of period features and modern convenience in one of Old Costessey’s most desirable locations.
Read less
Important Information
- This is a Freehold property.
| Mid Terrace Cottage |
Two Bedrooms |
| Lounge With Wood Burning Stove |
Dining Room |
| Modern Cottage Style Kitchen |
Re-Fitted Bathroom Suite With Underfloor Heating |
| Wealth Of Character Features |
Off Road parking |
| Mature Garden With Summerhouse |
Epc rating D / Council Tax Band A |