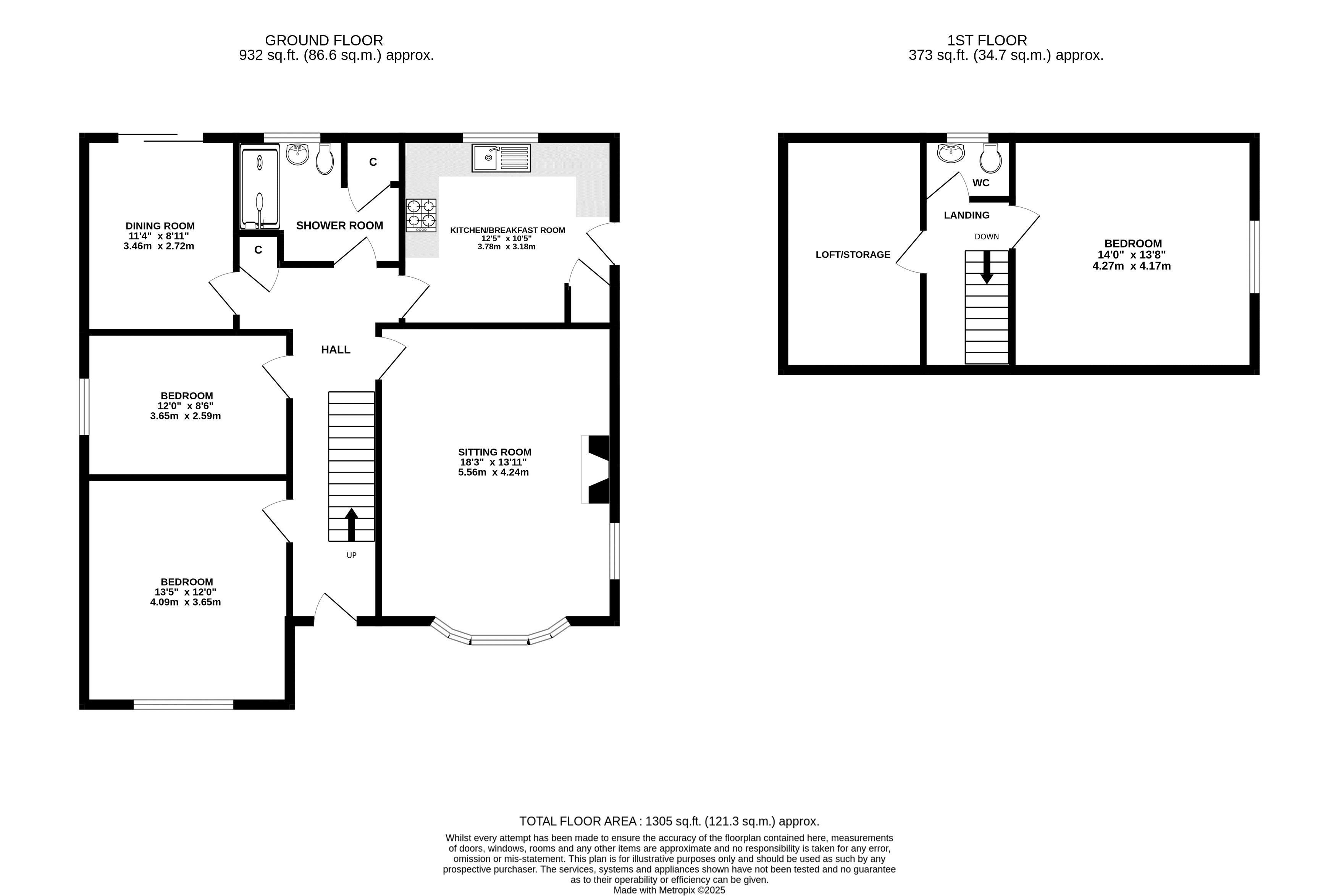
Attractive Three-Bedroom Detached Chalet in Taverham. Located in a desirable position close to local amenities and regular bus routes, this well-presented three-bedroom detached chalet offers spacious and versatile accommodation, and is being sold with no onward chain. The property is in excellent decorative order throughout and features a welcoming entrance hallway with stairs rising to the first floor and doors leading to all principal rooms. The generous sitting room enjoys a dual aspect with a bay window to the front and a feature fireplace, creating a bright and comfortable living space. To the rear, the kitchen/breakfast room is fitted with a range of wall and base units with roll-top work surfaces, offering ample storage and space for appliances. There is also a useful pantry cupboard, a side access door, and a window overlooking the attractive rear garden. The ground floor further comprises two well-proportioned bedrooms, a separate dining room with sliding doors opening to the garden (which could alternatively serve as a fourth bedroom), and a modern shower room fitted with a three-piece suite including a shower cubicle, low-level WC, and hand wash basin. Upstairs, the first-floor landing provides access to a separate WC, the spacious master bedroom, and a useful loft storage area. Outside, the property is set back from the road with a neatly maintained front garden and a driveway providing ample off-road parking, leading to a single garage. The rear garden is private, enclosed by timber fencing, and mainly laid to lawn with mature borders,perfect for outdoor relaxation or entertaining. This lovely home offers comfortable, flexible living in a sought-after location and is ready to move straight into.
Read more
Attractive Three-Bedroom Detached Chalet in Taverham. Located in a desirable position close to local amenities and regular bus routes, this well-presented three-bedroom detached chalet offers spacious and versatile accommodation, and is being sold with no onward chain. The property is in excellent decorative order throughout and features a welcoming entrance hallway with stairs rising to the first floor and doors leading to all principal rooms. The generous sitting room enjoys a dual aspect with a bay window to the front and a feature fireplace, creating a bright and comfortable living space. To the rear, the kitchen/breakfast room is fitted with a range of wall and base units with roll-top work surfaces, offering ample storage and space for appliances. There is also a useful pantry cupboard, a side access door, and a window overlooking the attractive rear garden. The ground floor further comprises two well-proportioned bedrooms, a separate dining room with sliding doors opening to the garden (which could alternatively serve as a fourth bedroom), and a modern shower room fitted with a three-piece suite including a shower cubicle, low-level WC, and hand wash basin. Upstairs, the first-floor landing provides access to a separate WC, the spacious master bedroom, and a useful loft storage area. Outside, the property is set back from the road with a neatly maintained front garden and a driveway providing ample off-road parking, leading to a single garage. The rear garden is private, enclosed by timber fencing, and mainly laid to lawn with mature borders,perfect for outdoor relaxation or entertaining. This lovely home offers comfortable, flexible living in a sought-after location and is ready to move straight into.
**Attractive Three-Bedroom Detached Chalet in Taverham**. Located in a desirable position close to local amenities and regular bus routes, this well-presented three-bedroom detached chalet offers spacious and versatile accommodation, and is being sold with no onward chain. The property is in excellent decorative order throughout and features a welcoming entrance hallway with stairs rising to the first floor and doors leading to all principal rooms. The generous sitting room enjoys a dual aspect with a bay window to the front and a feature fireplace, creating a bright and comfortable living space. To the rear, the kitchen/breakfast room is fitted with a range of wall and base units with roll-top work surfaces, offering ample storage and space for appliances. There is also a useful pantry cupboard, a side access door, and a window overlooking the attractive rear garden. The ground floor further comprises two well-proportioned bedrooms, a separate dining room with sliding doors opening to the garden (which could alternatively serve as a fourth bedroom), and a modern shower room fitted with a three-piece suite including a shower cubicle, low-level WC, and hand wash basin. Upstairs, the first-floor landing provides access to a separate WC, the spacious master bedroom, and a useful loft storage area. Outside, the property is set back from the road with a neatly maintained front garden and a driveway providing ample off-road parking, leading to a single garage. The rear garden is private, enclosed by timber fencing, and mainly laid to lawn with mature borders,perfect for outdoor relaxation or entertaining. This lovely home offers comfortable, flexible living in a sought-after location and is ready to move straight into.
Read less
Important Information
- This is a Freehold property.
| Attractive Three-Bedroom Detached Chalet In A Sought-After Taverham Location |
Offered With No Onward Chain And Presented In Excellent Decorative Order |
| Spacious Sitting Room With Feature Fireplace And Dual Aspect Bay Window |
Well-Fitted Kitchen/Breakfast Room With Pantry And Garden Views |
| Flexible Layout With Dining Room/Optional Fourth Bedroom |
Modern Ground Floor Shower Room And Separate First-Floor W/C |
| Generous Off-Road Parking, Driveway, And Single Garage |
Private, Enclosed Rear Garden With Lawn And Mature Borders |
| Close To All Local Amenities |
EPC Rating D / Council Tax Band D |