3 bedroom Chalet for sale in Norwich

 

St. Edmunds Rise, Taverham, Norwich

Asking Price £415,000

3 Bedroom Chalet

Ref: EAXML11851_12500593

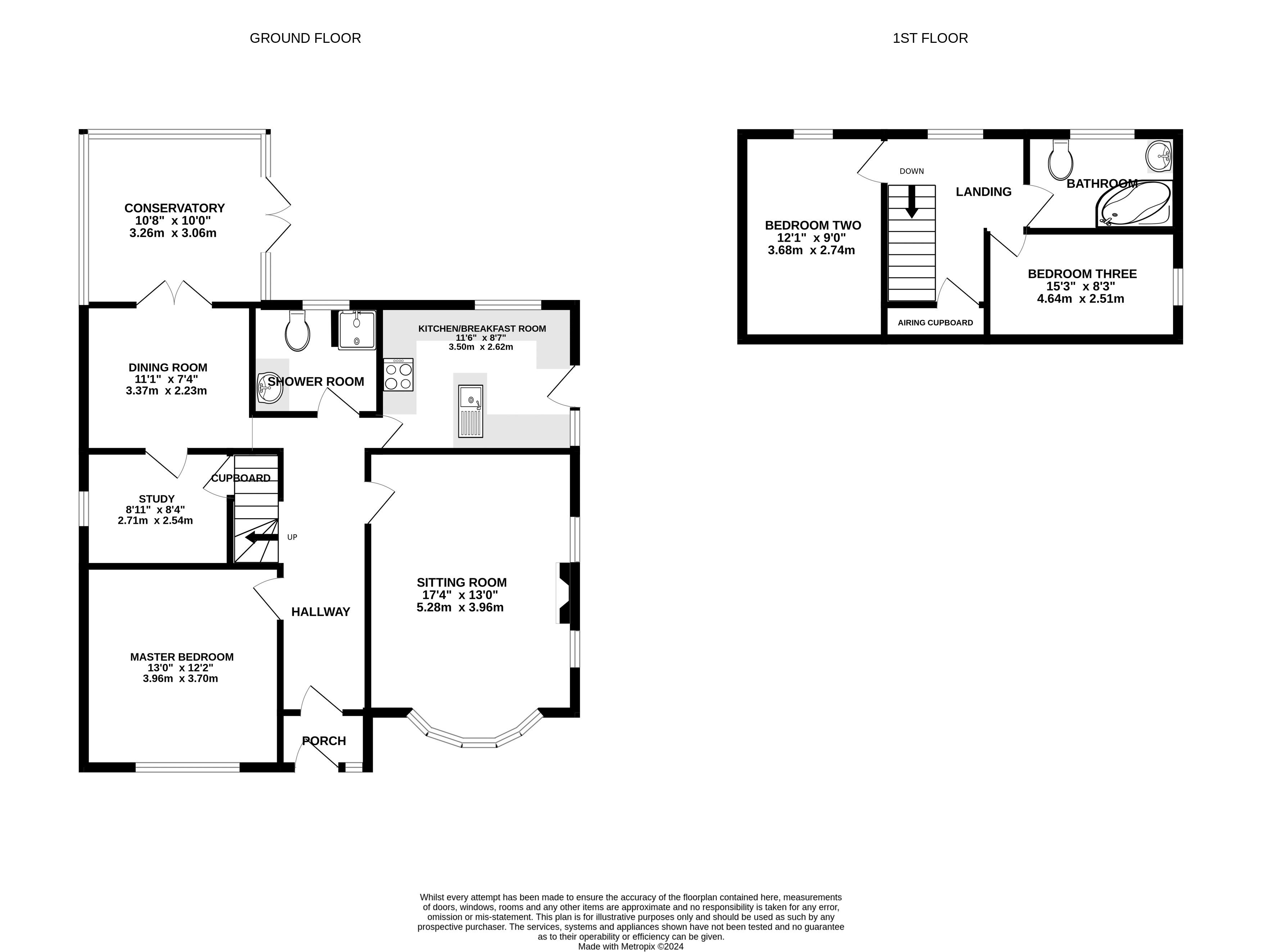
***SPACIOUS DETACHED CHALET*** Iconic are pleased to market this three/four bedroom detached chalet situated in Taverham. Occupying a generous plot this great property is also situated close to all amenities and good transport links. The accommodation comprises; spacious entrance hallway with stairs rising to the first floor and doors which lead to the majority of the ground floor rooms. The sitting room is located to the front aspect of the home and benefits from a bay window to the front aspect. The principal bedroom is also located to the front aspect and is a good size double room. To the rear of the home there is a dining room which has a door to the study which could easily be utilised as a fourth bedroom and French doors which lead to the conservatory. There is a ground floor shower room with three piece suite comprising; a shower cubicle, low level WC and a hand wash basin. There is also a modern kitchen/breakfast room which offers a range of wall and base units with roll top work surfaces above. To the first floor there is a generous landing with storage that gives access to two further bedrooms and a family bathroom with three piece suite. To the outside front aspect the property benefits from a substantial frontage which is lawned with a shingle driveway providing ample off road parking. Furthermore the shingle driveway extends to the side aspect past the five bar gate and leads to the garage. To the rear aspect there is a private garden which is well stocked with mature flowers and shrubs. With a patio area providing seating there is a further raised area which is paved and perfect for enjoying the late afternoon sun. Lastly there is a paved pathway which leads to the personal door to the side of the garage.


Read more

Important Information

  • This is a Freehold property.
Three/Four Bedroom Detached Chalet Ground Floor Fourth Bedroom/Study
Family Bathroom and Modern Shower Room Substantial Frontage With Driveway and Garage
Modern Kitchen/Breakfast Room Popular Village Location
Beautiful Mature Garden EPC Rating E
Council Tax Band D Call Now To View

epc

Iconic

Iconic

297 Fakenham Road

Taverham

Norwich

Norfolk

NR8 6LE

United Kingdom

Tel: 01603 261104
E-Mail: contactus@iconic.uk.com

Arrange a Viewing Videoette Brochure EPC Printable Details Request a Phone Call Request Details E-Mail Agent
Update Cookies Preferences