2 bedroom Semi-Detached House for sale in Norwich

 

Bridge Close, Lenwade, Norwich

Offers in excess of £220,000

2 Bedroom Semi-Detached House

Ref: TAV03757

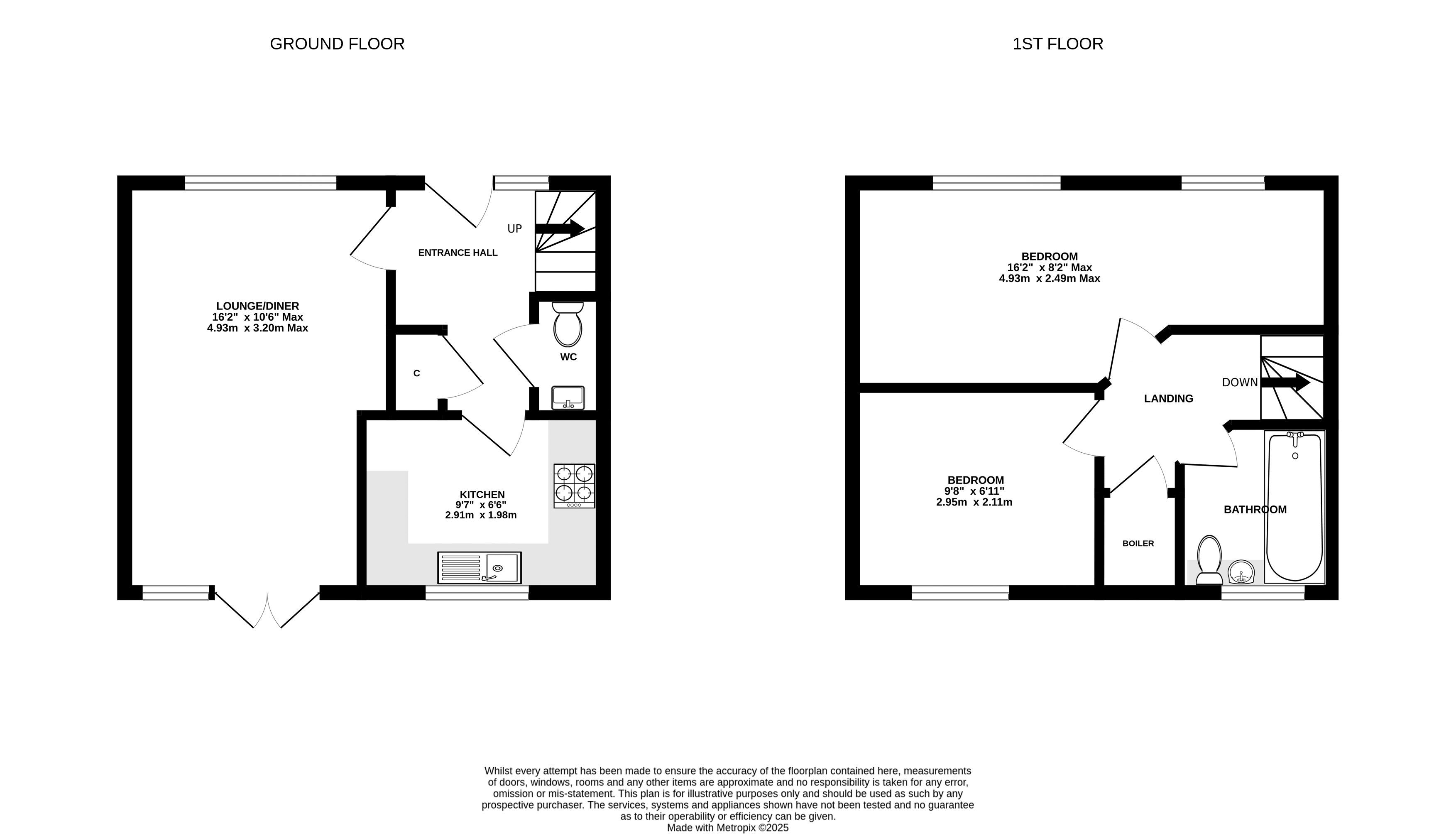
***SOUGHT AFTER POSITION*** Situated in this modern and rarely available small development of only nine properties in Lenwade, is this two-bedroom semi detached property ideal for first time buyers and investors. The property was built in 2021 and comes with the benefit of the balance of the NHBC certificate along with further benefits like an air source heat pump, double glazing, Bosch kitchen appliances and a generous corner plot garden. The internal accommodation comprises; entrance hall with stairs rising to the first floor with doors that lead to the kitchen, lounge/diner and two-piece cloak room. The kitchen offers a range of wall and base high gloss grey units with work surface over and integrated appliances which include an electric oven and hob, dishwasher and washing machine while the spacious 16ft lounge/diner boasts French doors to the rear garden and spot lights. Upstairs there are two bedrooms off the landing, a boiler cupboard and a white three-piece family bathroom suite. Outside the property offers parking to the front via a driveway, along with a section of lawn that could be converted to additional parking if required, this also gives a side access to the rear garden. To the rear there is a deceptively spacious panel fence enclosed garden that’s mostly laid to lawn with a patio area ideal for entertaining which boasts a high degree of privacy and backs onto the local fishing lakes. The property is situated at the end of the cul-de-sac and is within easy access of the local amenities which include regular public transport links, public house, bakery and chip shop and is within easy access of the local school and the catchment for Reepham High. Call now to book your time to view!

Read more

Important Information

  • This is a Freehold property.
Modern Semi Detached Property Two Bedrooms
Kitchen Lounge/Diner
Modern Bathroom Suite Generous Corner Plot Garden
Off Road Parking Eco Friendly Air Source Heat Pump Heating System
Requested Village Location EPC Rating C / Council Tax Band B
Sorry! An EPC is not available for this property.

Iconic

Iconic

297 Fakenham Road

Taverham

Norwich

Norfolk

NR8 6LE

United Kingdom

Tel: 01603 261104
E-Mail: contactus@iconic.uk.com

Arrange a Viewing Videoette Brochure Printable Details Request a Phone Call Request Details E-Mail Agent
Update Cookies Preferences