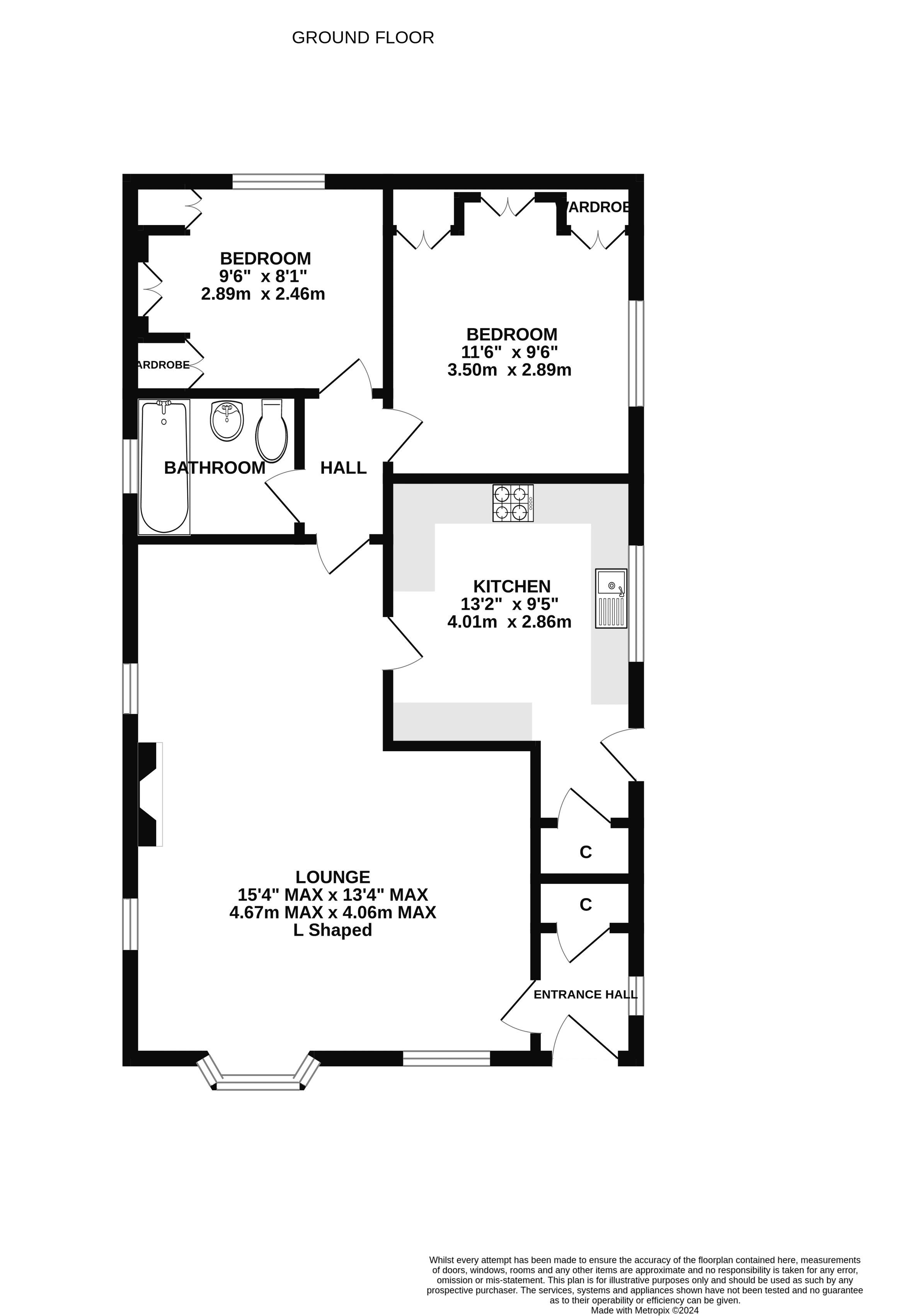
***ATTRACTIVE PARK HOME*** Iconic are pleased to bring to the market this attractive two bedroom park home situated in Drayton. Occupying a good position on the site this home has been well kept throughout and is offered with no onward chain. The accommodation comprises; an entrance hall with storage cupboard. An L shape sitting/dining room with feature fireplace and a range of windows which flood the room with natural light. The kitchen is a good size and benefits from a range of wall and base units with roll top work surfaces above with a storage cupboard and window and door to the rear aspect. Additionally there is a rear hallway which gives access to both bedrooms and the family bathroom. Both bedrooms are well proportioned and benefit from built in wardrobes and storage. The family bathroom benefits from a three piece suite which comprises a panel bath, low level WC and a hand wash basin. Outside the property has a walkway around the property with a brick built storage shed. Iconic are waiting for confirmation of the monthly service charges which be estimate to be around £190PCM. The property benefits from communal parking and there are garages on site available to rent.
Read more
***ATTRACTIVE PARK HOME*** Iconic are pleased to bring to the market this attractive two bedroom park home situated in Drayton. Occupying a good position on the site this home has been well kept throughout and is offered with no onward chain. The accommodation comprises; an entrance hall with storage cupboard. An L shape sitting/dining room with feature fireplace and a range of windows which flood the room with natural light. The kitchen is a good size and benefits from a range of wall and base units with roll top work surfaces above with a storage cupboard and window and door to the rear aspect. Additionally there is a rear hallway which gives access to both bedrooms and the family bathroom. Both bedrooms are well proportioned and benefit from built in wardrobes and storage. The family bathroom benefits from a three piece suite which comprises a panel bath, low level W/C and a hand wash basin. Outside the property has a walkway around the property with a brick built storage shed. Iconic are waiting for confirmation of the monthly service charges which be estimate to be around £190PCM. The property benefits from communal parking and there are garages on site available to rent.
Read less
Important Information
- This is a Share of Freehold property.
| Attractive Park Home |
Two Double Bedrooms |
| Generous Fitted Kitchen |
L-Shaped Sitting/Dining Room |
| Garage Available to Rent |
Three Piece Family Bathroom |
| Brick Built Storage Shed |
Entrance Hall and Storage |
| Offered With No Onward Chain |
Council Tax Band A |