3 bedroom End of Terrace House for sale in Norwich

 

Acres Way, Drayton, Norwich

Asking Price £250,000

3 Bedroom End of Terrace House

Ref: EAXML11851_11002022

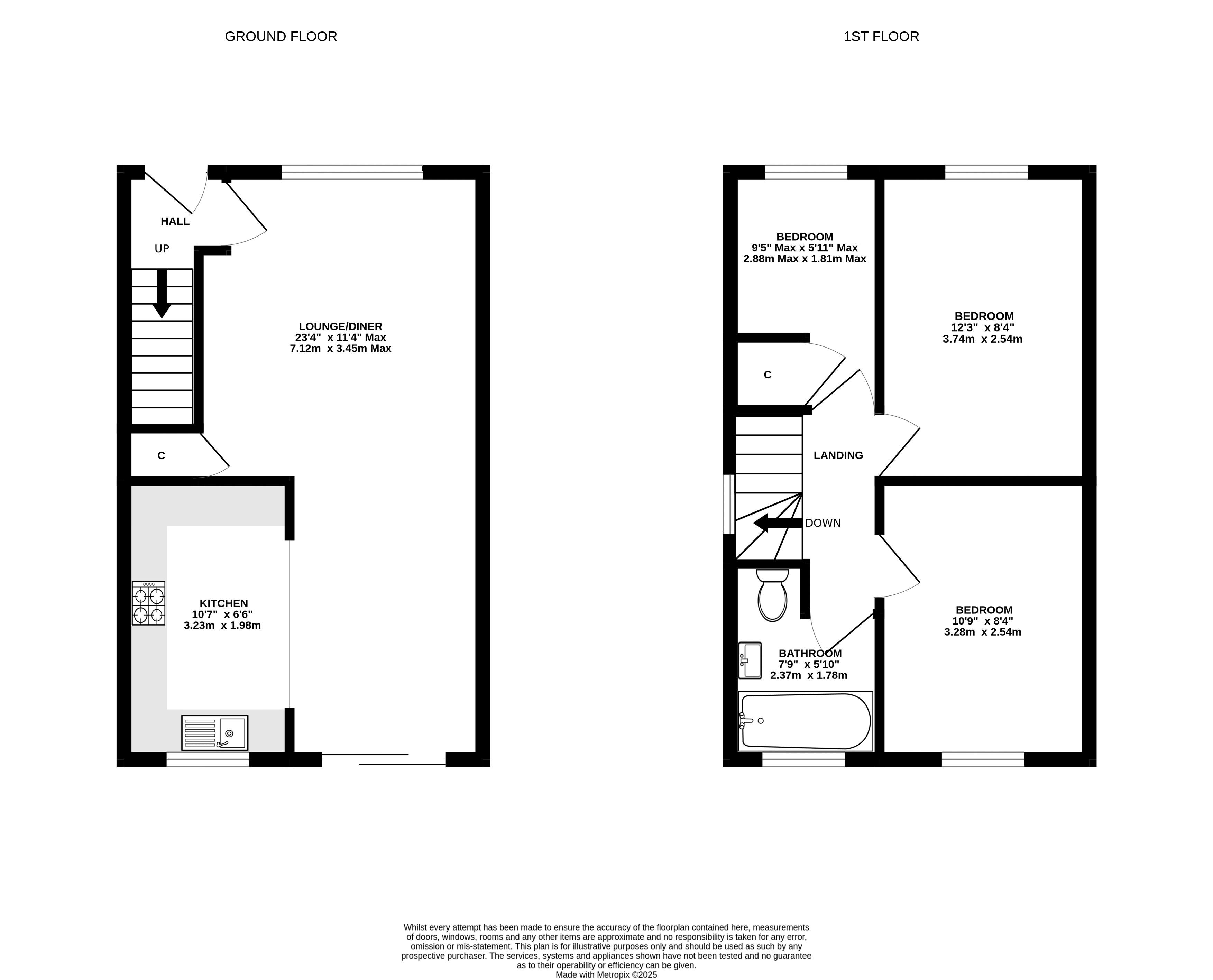
***Modern Three-Bedroom Semi-Detached Home with Stylish Interiors*** This beautifully presented three-bedroom semi-detached home offers contemporary living in a convenient location, perfect for families or professionals alike. Upon entering, you are welcomed into an entrance hall with stairs rising to the first floor and a door leading to a spacious 23ft open-plan lounge/diner, ideal for entertaining or relaxing. The modern kitchen is open to the lounge and offers a range of sleek wall and base units and integrated appliances. Upstairs, the property comprises three bedrooms and a stylish three-piece family bathroom suite, all updated to a high standard. Outside, the rear garden is split-level and enclosed for privacy, featuring a patio area perfect for outdoor dining and a sunken lawn ideal for children or pets. The property also benefits from an en-bloc garage, providing secure parking or additional storage. Situated within easy reach of local shops, schools, and amenities, this home combines modern comforts with a prime location. The property has been tastefully updated throughout and early viewing is highly recommended to fully appreciate what’s on offer.


Read more

Important Information

  • This is a Freehold property.
Modern Three Bedroom Semi detached house Entrance Hall
Re-fitted Kitchen Spacious Lounge/Diner
Modern Family Bathroom Split Level Garden
En-Bloc Garage Well Presented Throughout
Close To Local Amenities EPC Rating C / Council Tax Band B

epc

Iconic

Iconic

297 Fakenham Road

Taverham

Norwich

Norfolk

NR8 6LE

United Kingdom

Tel: 01603 261104
E-Mail: contactus@iconic.uk.com

Arrange a Viewing Videoette Brochure EPC Printable Details Request a Phone Call Request Details E-Mail Agent
Update Cookies Preferences