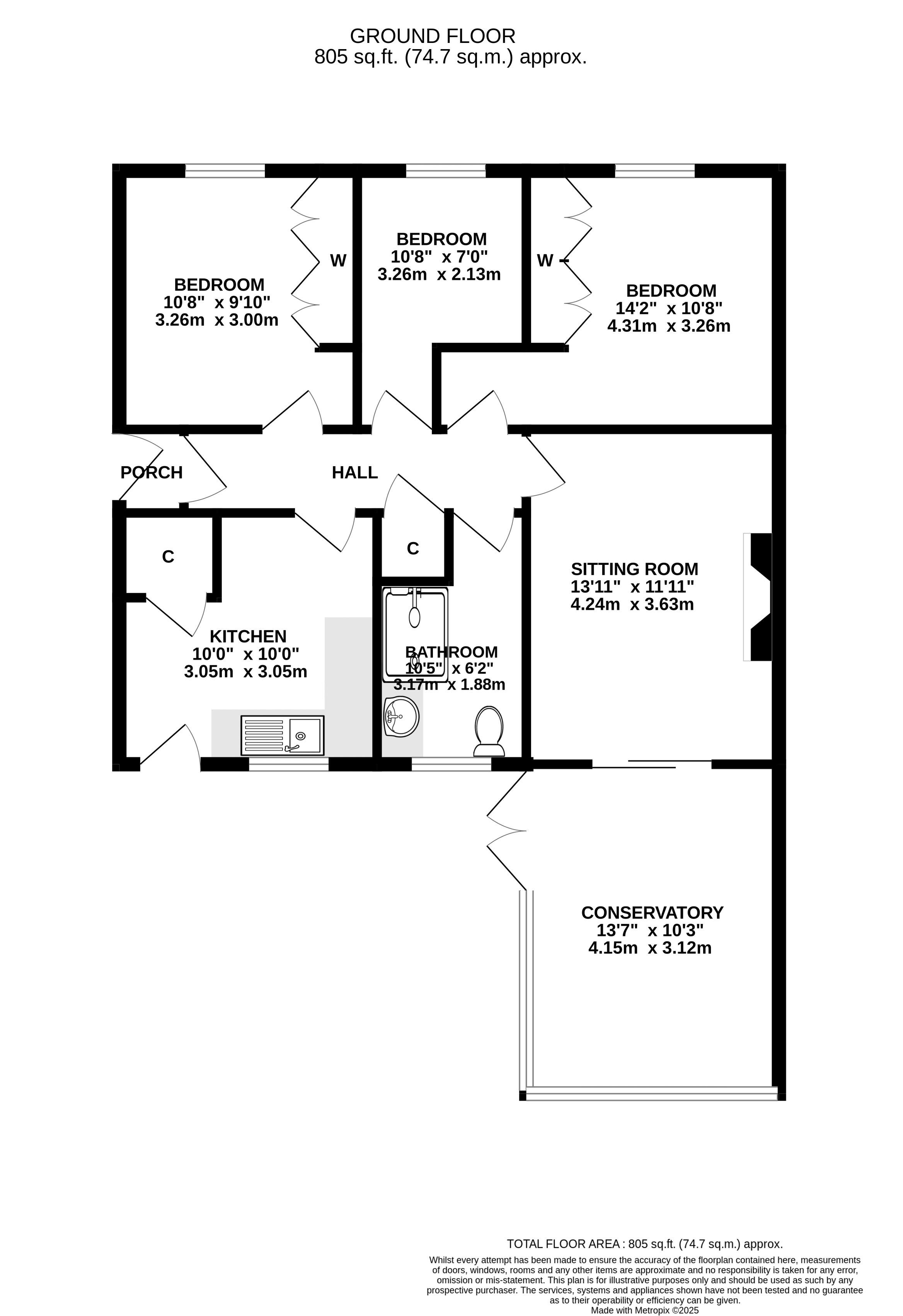
***£280,000-£290,000 GUIDE PRICE*** An attractive three-bedroom semi-detached bungalow, situated in the popular suburb of Hellesdon, and offered with no onward chain. This well-presented home enjoys a generous mature rear garden and is certain to appeal to a range of buyers. Early viewing is highly recommended. The accommodation comprises; entrance porch leading into the inner hallway which provides access to all rooms. The sitting room is a well-proportioned space with sliding doors opening into a bright conservatory, complete with tiled flooring and French doors leading directly to the rear garden. The kitchen is fitted with a range of wall and base units with roll-top work surfaces, offering ample space for appliances along with a useful pantry cupboard and a door providing further access to the garden. There are three good-sized bedrooms, two of which benefit from built-in wardrobes, together with a shower room fitted with a three-piece suite including a shower cubicle, low-level WC and hand wash basin. Outside, the property is approached by a low-maintenance shingled garden to the front with a driveway providing ample off-road parking, which continues along the side of the property to the rear. The rear garden is a particular feature of the home, being both substantial and private, enclosed by timber fencing and laid mainly to lawn with mature shrub borders. The driveway extends to a single garage, complete with power, lighting and an up-and-over door, as well as an adjoining timber outhouse.
Read more
***£280,000-£290,000 GUIDE PRICE*** An attractive three-bedroom semi-detached bungalow, situated in the popular suburb of Hellesdon, and offered with no onward chain. This well-presented home enjoys a generous mature rear garden and is certain to appeal to a range of buyers. Early viewing is highly recommended. The accommodation comprises; entrance porch leading into the inner hallway which provides access to all rooms. The sitting room is a well-proportioned space with sliding doors opening into a bright conservatory, complete with tiled flooring and French doors leading directly to the rear garden. The kitchen is fitted with a range of wall and base units with roll-top work surfaces, offering ample space for appliances along with a useful pantry cupboard and a door providing further access to the garden. There are three good-sized bedrooms, two of which benefit from built-in wardrobes, together with a shower room fitted with a three-piece suite including a shower cubicle, low-level WC and hand wash basin. Outside, the property is approached by a low-maintenance shingled garden to the front with a driveway providing ample off-road parking, which continues along the side of the property to the rear. The rear garden is a particular feature of the home, being both substantial and private, enclosed by timber fencing and laid mainly to lawn with mature shrub borders. The driveway extends to a single garage, complete with power, lighting and an up-and-over door, as well as an adjoining timber outhouse.
Read less
Important Information
- This is a Freehold property.
| Semi Detached Bungalow |
Three Well Proportioned Bedrooms |
| Fitted Kitchen With Garden Access |
Spacious Sitting Room & Conservatory |
| Family Bathroom |
Generous Private Rear Garden |
| Garage With With And Adjoining Out House |
£280,000-£290,000 Guide Price |
| Offered With No Onward Chain |
EPC Rating D / Council Tax Band C |