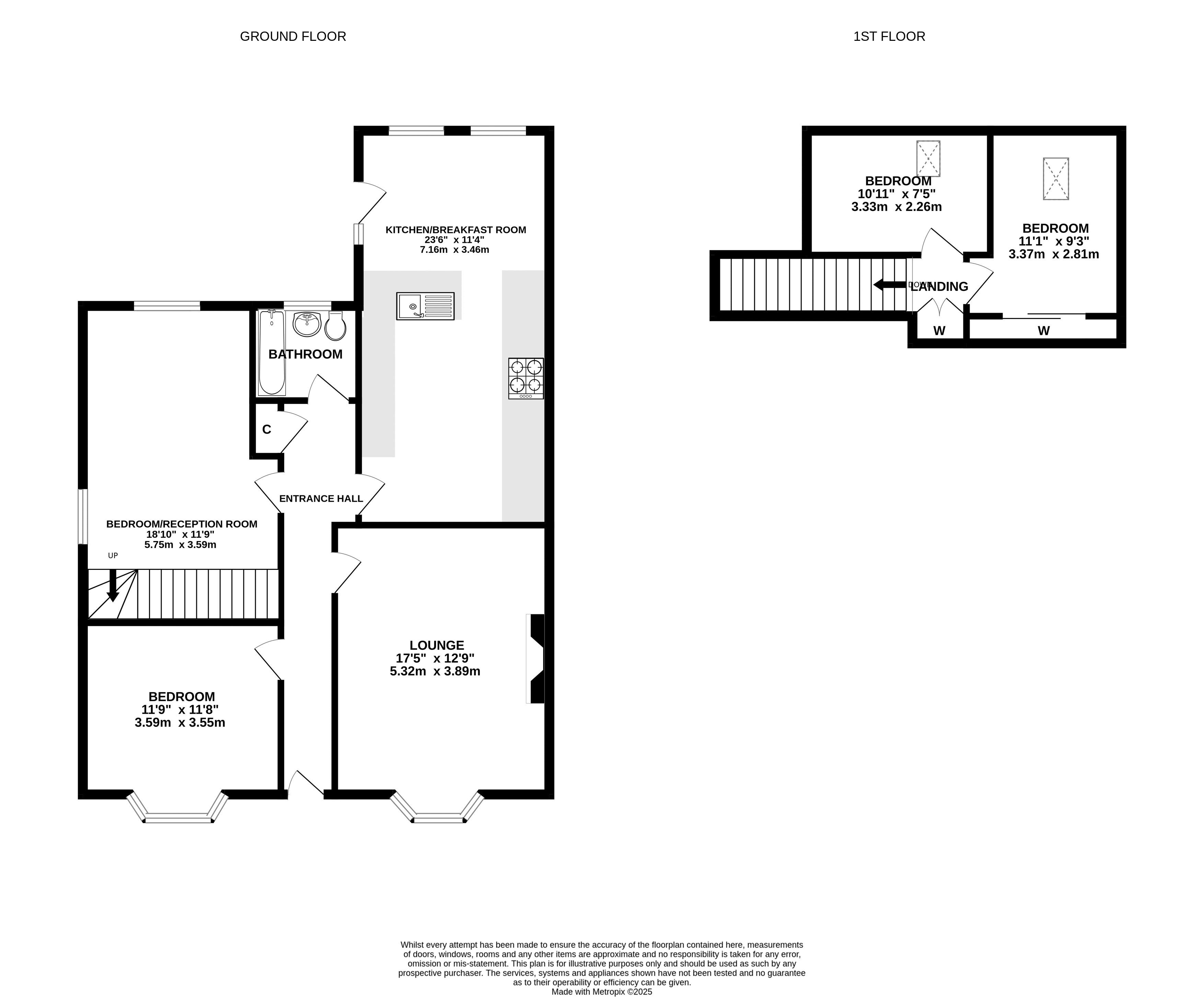
***GUIDE PRICE £290,000 - £300,000***We are delighted to present this attractive three/four bedroom detached chalet bungalow, set on a generous plot in the ever-popular area of Hellesdon. Offered with no onward chain, this extended home has been well maintained throughout and provides flexible accommodation to suit a range of lifestyles. Upon entering, the hallway leads to the majority of the ground-floor rooms. The sitting room is a bright and comfortable space, enhanced by a feature fireplace and an elegant bay window to the front aspect. The main bedroom also sits to the front, benefiting from its own bay window and offering a peaceful retreat. To the rear, the impressive kitchen/dining room extends over 23 feet and is fitted with a variety of wall and base units, providing excellent storage and workspace. There is ample room for appliances and a family dining table, with direct access out to the rear garden. An additional reception room offers superb versatility, featuring stairs to the first floor and the potential to be used as a study area and separate fourth bedroom if desired. Completing the ground floor is a family bathroom with a three-piece suite which comprises a panel bath, low level WC and a hand wash basin. Upstairs, the first-floor landing provides access to two further bedrooms, both equipped with Velux windows and useful eaves storage. Outside, the property boasts a generous shingled driveway with ample parking and access to the garage. Mature borders and a brick retaining wall with steps create an attractive approach to the front door. The rear garden is a true highlight—fully enclosed, non-overlooked and beautifully established, offering the perfect setting for relaxing or gardening.
Read more
***GUIDE PRICE £290,000 - £300,000***
We are delighted to present this attractive three/four bedroom detached chalet bungalow, set on a generous plot in the ever-popular area of Hellesdon. Offered with no onward chain, this extended home has been well maintained throughout and provides flexible accommodation to suit a range of lifestyles.
Upon entering, the hallway leads to the majority of the ground-floor rooms. The sitting room is a bright and comfortable space, enhanced by a feature fireplace and an elegant bay window to the front aspect. The main bedroom also sits to the front, benefiting from its own bay window and offering a peaceful retreat.
To the rear, the impressive kitchen/dining room extends over 23 feet and is fitted with a variety of wall and base units, providing excellent storage and workspace. There is ample room for appliances and a family dining table, with direct access out to the rear garden. An additional reception room offers superb versatility, featuring stairs to the first floor and the potential to be used as a study area and separate fourth bedroom if desired. Completing the ground floor is a family bathroom with a three-piece suite which comprises a panel bath, low level WC and a hand wash basin. Upstairs, the first-floor landing provides access to two further bedrooms, both equipped with Velux windows and useful eaves storage.
Outside, the property boasts a generous shingled driveway with ample parking and access to the garage. Mature borders and a brick retaining wall with steps create an attractive approach to the front door.
The rear garden is a true highlight—fully enclosed, non-overlooked and beautifully established, offering the perfect setting for relaxing or gardening.
Read less
Important Information
- This is a Freehold property.
| Attractive three/four bedroom detached chalet bungalow |
Sitting room with feature fireplace and bay window to the front aspect |
| 23ft kitchen/dining room, well equipped and offering generous space for cooking and entertaining |
Offered With No Onward Chain |
| Spacious main bedroom with bay window |
Flexible additional reception room, ideal as a study and potential fourth bedroom. |
| Two first-floor bedrooms with Velux windows and excellent eaves storage. |
Generous driveway, garage and mature enclosed rear garden |
| Council Tax Band C |
EPC Rating E |