**GUIDE PRICE £325,000 - £350,000**. A well-presented four bedroom detached family home in a Sought-After village location. We are delighted to offer this modern and spacious four-bedroom detached home, ideally situated at the end of a quiet cul-de-sac in the popular village of Horsford. This well-maintained property offers generous living space throughout and is perfect for family living. The ground floor accommodation comprises; welcoming entrance hall with stairs rising to the first floor and doors leading to all principal rooms, including a convenient downstairs cloakroom. The sitting room is a substantial space, measuring over 20 feet, and features a charming fireplace, a window to the front, and sliding doors opening into the conservatory. The conservatory provides an excellent additional reception area, enjoying views over the private rear garden and benefitting from French doors to the side. The spacious kitchen/dining room is fitted with a range of high-quality units and ample worktop space, along with an integrated electric oven, separate gas hob, and extractor hood. The dining area includes a large built-in bookcase offering additional storage and display space. A separate utility room, accessed from the kitchen, offers further units, houses the wall-mounted boiler, and provides direct access to the rear garden. Upstairs, a generous landing leads to four well-proportioned bedrooms and the family bathroom. The master bedroom boasts built-in wardrobes and a modern en-suite shower room with a three-piece suite. Bedroom two also includes fitted storage, while bedrooms three and four are both good sizes. The family bathroom is fitted with a panelled bath and shower over, low level WC, and wash hand basin. Externally, the property is set back from the road with a well-stocked front garden and a double-width driveway offering ample off-road parking and access to a single garage. The rear garden is private and enclosed by high-level brick walls, featuring a well-maintained lawn, mature borders, and a separate patio area ideal for outdoor dining and entertaining. Viewing is highly recommended to fully appreciate all that this fantastic family home has to offer.
Read more
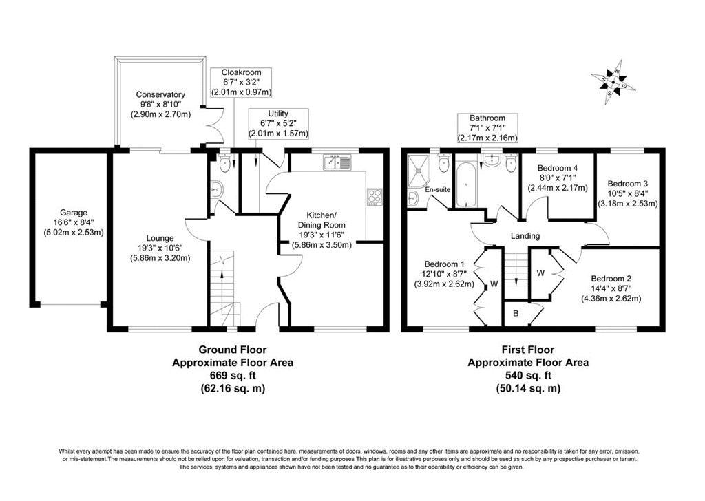
**GUIDE PRICE £325,000 - £350,000**. A well-presented four bedroom detached family home in a Sought-After village location. We are delighted to offer this modern and spacious four-bedroom detached home, ideally situated at the end of a quiet cul-de-sac in the popular village of Horsford. This well-maintained property offers generous living space throughout and is perfect for family living. The ground floor accommodation comprises; welcoming entrance hall with stairs rising to the first floor and doors leading to all principal rooms, including a convenient downstairs cloakroom. The sitting room is a substantial space, measuring over 20 feet, and features a charming fireplace, a window to the front, and sliding doors opening into the conservatory. The conservatory provides an excellent additional reception area, enjoying views over the private rear garden and benefitting from French doors to the side. The spacious kitchen/dining room is fitted with a range of high-quality units and ample worktop space, along with an integrated electric oven, separate gas hob, and extractor hood. The dining area includes a large built-in bookcase offering additional storage and display space. A separate utility room, accessed from the kitchen, offers further units, houses the wall-mounted boiler, and provides direct access to the rear garden. Upstairs, a generous landing leads to four well-proportioned bedrooms and the family bathroom. The master bedroom boasts built-in wardrobes and a modern en-suite shower room with a three-piece suite. Bedroom two also includes fitted storage, while bedrooms three and four are both good sizes. The family bathroom is fitted with a panelled bath and shower over, low level WC, and wash hand basin. Externally, the property is set back from the road with a well-stocked front garden and a double-width driveway offering ample off-road parking and access to a single garage. The rear garden is private and enclosed by high-level brick walls, featuring a well-maintained lawn, mature borders, and a separate patio area ideal for outdoor dining and entertaining. Viewing is highly recommended to fully appreciate all that this fantastic family home has to offer.
**GUIDE PRICE £325,000 - £350,000**. A Well-Presented Four Bedroom Detached Family Home in a Sought-After Village Location. We are delighted to offer this modern and spacious four-bedroom detached home, ideally situated at the end of a quiet cul-de-sac in the popular village of Horsford. This well-maintained property offers generous living space throughout and is perfect for family living. The ground floor accommodation comprises; welcoming entrance hall with stairs rising to the first floor and doors leading to all principal rooms, including a convenient downstairs cloakroom. The sitting room is a substantial space, measuring over 20 feet, and features a charming fireplace, a window to the front, and sliding doors opening into the conservatory. The conservatory provides an excellent additional reception area, enjoying views over the private rear garden and benefitting from French doors to the side. The spacious kitchen/dining room is fitted with a range of high-quality units and ample worktop space, along with an integrated electric oven, separate gas hob, and extractor hood. The dining area includes a large built-in bookcase offering additional storage and display space. A separate utility room, accessed from the kitchen, offers further units, houses the wall-mounted boiler, and provides direct access to the rear garden. Upstairs, a generous landing leads to four well-proportioned bedrooms and the family bathroom. The master bedroom boasts built-in wardrobes and a modern en-suite shower room with a three-piece suite. Bedroom two also includes fitted storage, while bedrooms three and four are both good sizes. The family bathroom is fitted with a panelled bath and shower over, low level WC, and wash hand basin. Externally, the property is set back from the road with a well-stocked front garden and a double-width driveway offering ample off-road parking and access to a single garage. The rear garden is private and enclosed by high-level brick walls, featuring a well-maintained lawn, mature borders, and a separate patio area ideal for outdoor dining and entertaining. Viewing is highly recommended to fully appreciate all that this fantastic family home has to offer.
Read less
Important Information
- This is a Freehold property.
| Four-bedroom Detached Home In Quiet cul-de-Sac |
Spacious 20' Lounge With Fireplace |
| Bright Conservatory With Garden Views And French Doors |
Modern Kitchen/Diner With Integrated Appliances |
| Separate Utility Room With Garden Access |
Master Bedroom With En-Suite And Wardrobes |
| Private Rear Garden with Lawn And Patio |
Driveway Parking and Single Garage |
| Call Now To View |
EPC Rating C / Tax Band D |