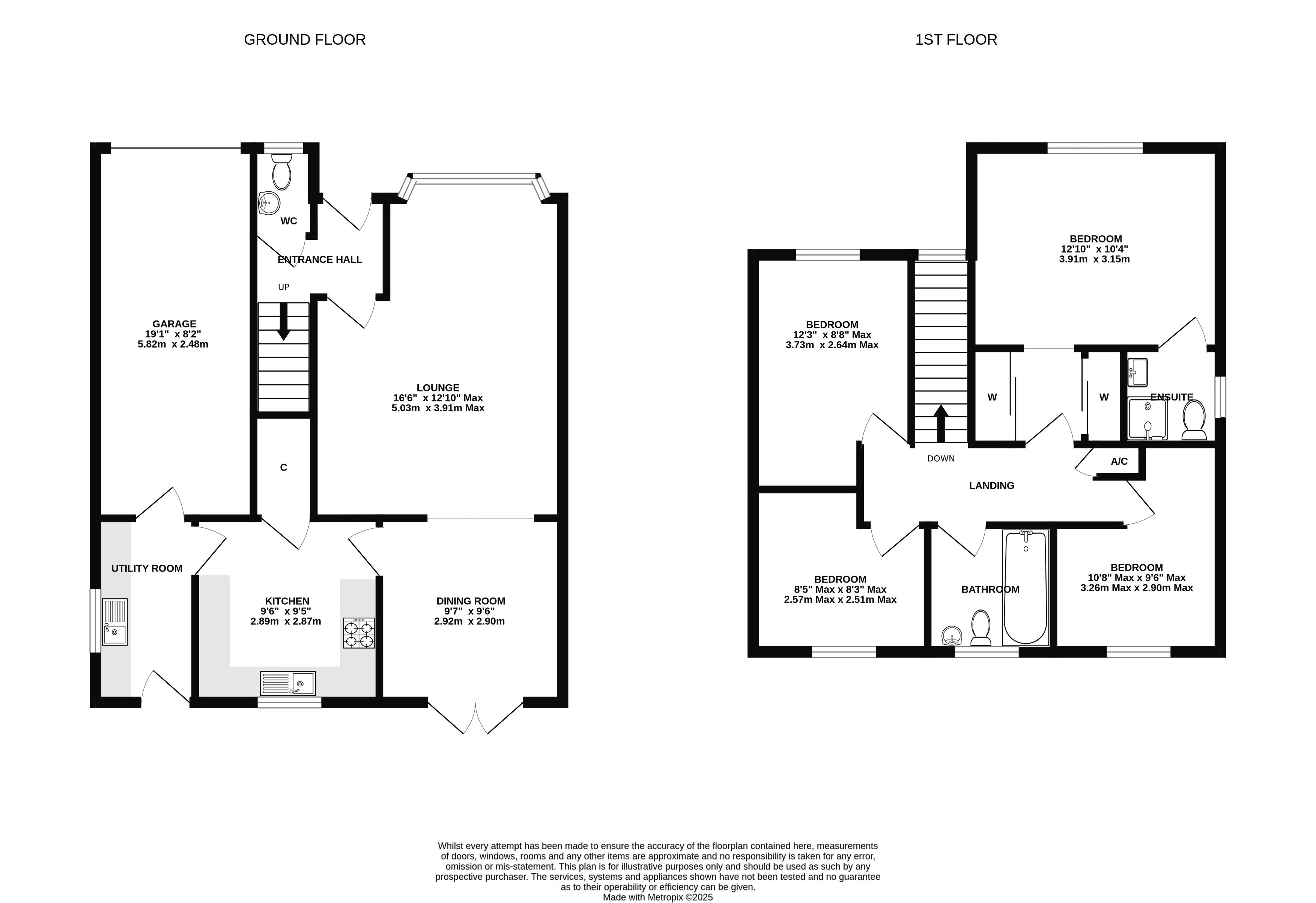
Attractive Four Bedroom Detached Family Home in a Desirable Taverham Cul-de-Sac. Nestled in a highly sought-after location in the popular village of Taverham, this spacious four-bedroom detached home offers versatile family living within easy reach of Marriotts Way, local schools, shops, and amenities. The property welcomes you with an inviting entrance hall featuring a cloakroom, stairs rising to the first floor, and access to the bay-fronted lounge. The spacious lounge boasts ample space for sofas and is open to the separate dining room ideal for family gatherings, along with a well-proportioned kitchen and a useful utility room which houses the recently updated gas boiler. Upstairs, the landing provides access to four generous bedrooms and the family bathroom. The master bedroom benefits from a recently re-fitted en-suite shower room as well as fitted wardrobes, offering both comfort and convenience. Outside, the home enjoys off-road parking to the front and an integral single garage. The standout feature is the generous south-facing rear garden, mainly laid to lawn and offering side access, a spacious patio, and a decked area—perfect for outdoor dining and relaxation. Offering space, practicality, and a superb location, this is an excellent opportunity to secure a wonderful family home in one of Taverham’s most desirable settings.
Read more
Attractive Four Bedroom Detached Family Home in a Desirable Taverham Cul-de-Sac. Nestled in a highly sought-after location in the popular village of Taverham, this spacious four-bedroom detached home offers versatile family living within easy reach of Marriotts Way, local schools, shops, and amenities. The property welcomes you with an inviting entrance hall featuring a cloakroom, stairs rising to the first floor, and access to the bay-fronted lounge. The spacious lounge boasts ample space for sofas and is open to the separate dining room ideal for family gatherings, along with a well-proportioned kitchen and a useful utility room which houses the recently updated gas boiler. Upstairs, the landing provides access to four generous bedrooms and the family bathroom. The master bedroom benefits from a recently re-fitted en-suite shower room as well as fitted wardrobes, offering both comfort and convenience. Outside, the home enjoys off-road parking to the front and an integral single garage. The standout feature is the generous south-facing rear garden, mainly laid to lawn and offering side access, a spacious patio, and a decked area—perfect for outdoor dining and relaxation. Offering space, practicality, and a superb location, this is an excellent opportunity to secure a wonderful family home in one of Taverham’s most desirable settings.
Read less
Important Information
- This is a Freehold property.
| Detached Family Home |
Four Bedrooms |
| Spacious Bay Fronted Lounge |
Separate Dining Room |
| Kitchen & Utility Room |
South Facing Rear Garden |
| Garage & Driveway |
Cul-De-Sac Position |
| Early Viewings Advised |
Epc Rating Tbc / Council Tax Band D |