1 bedroom Apartment for sale in Norwich

 

Freeland Close, Taverham, Norwich

Guide Price £140,000

1 Bedroom Apartment

Ref: TAV04043

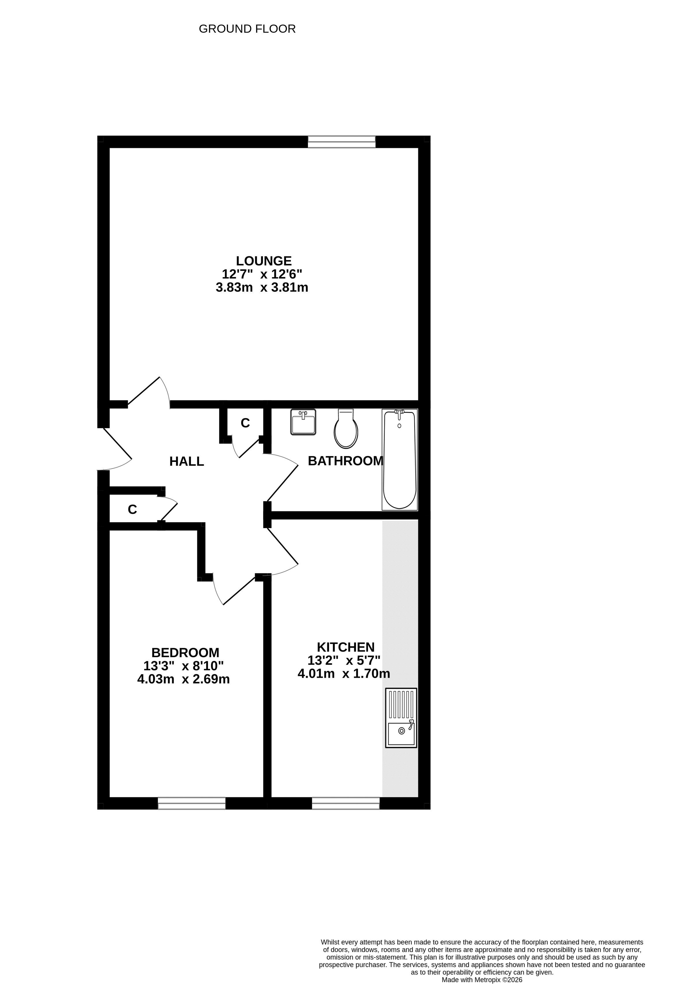
**GUIDE PRICE £140,000 - £150,000** Situated on the edge of the ever-popular Thorpe Marriott, Taverham, this attractive first-floor apartment is offered to the market with no onward chain, making it an ideal purchase for first-time buyers, investors, or those looking to downsize. Beautifully presented throughout, the property has recently been refreshed with newly fitted carpets and freshly decorated walls, creating a bright and welcoming feel from the moment you step inside. The accommodation is accessed via a spacious entrance hallway, complete with two useful storage cupboards and doors leading to all principal rooms. The generously proportioned sitting room enjoys two windows to the front aspect, allowing for plenty of natural light and providing a comfortable space for both relaxing and entertaining. The kitchen measures in excess of 13 feet and is fitted with a range of wall and base units with worktops over, offering excellent storage and preparation space. There is an integral electric oven with hob, a fridge/freezer, and further ample space for additional appliances. The apartment also benefits from a well-sized single bedroom, ideal as a guest room, home office, or nursery, along with a family bathroom fitted with a modern white three-piece suite. Externally, the property enjoys the added advantage of two allocated parking spaces, a rare and highly desirable feature for apartments of this type. With its convenient location, well-presented interior, and chain-free status, this is a superb opportunity not to be missed. Early viewing is highly recommended.

Agents Notes: 953 years remain on lease: Peppercorn Rent

Read more

Important Information

  • This is a Leasehold property.
Attractive First Floor Apartment Offered With No Onward Chain
Generous Single Sized Bedroom Spacious Sitting Room With Two Front Aspect Windows
Fitted Kitchen Three Piece Family Bathroom Suite
Two Allocated Parking Spaces Newly Fitted Carpets And Re-Decorated
Edge Of Development Location EPC Rating C / Council Tax Band A
Sorry! An EPC is not available for this property.

Iconic

Iconic

297 Fakenham Road

Taverham

Norwich

Norfolk

NR8 6LE

United Kingdom

Tel: 01603 261104
E-Mail: contactus@iconic.uk.com

Arrange a Viewing Brochure Printable Details Request a Phone Call Request Details E-Mail Agent
Update Cookies Preferences