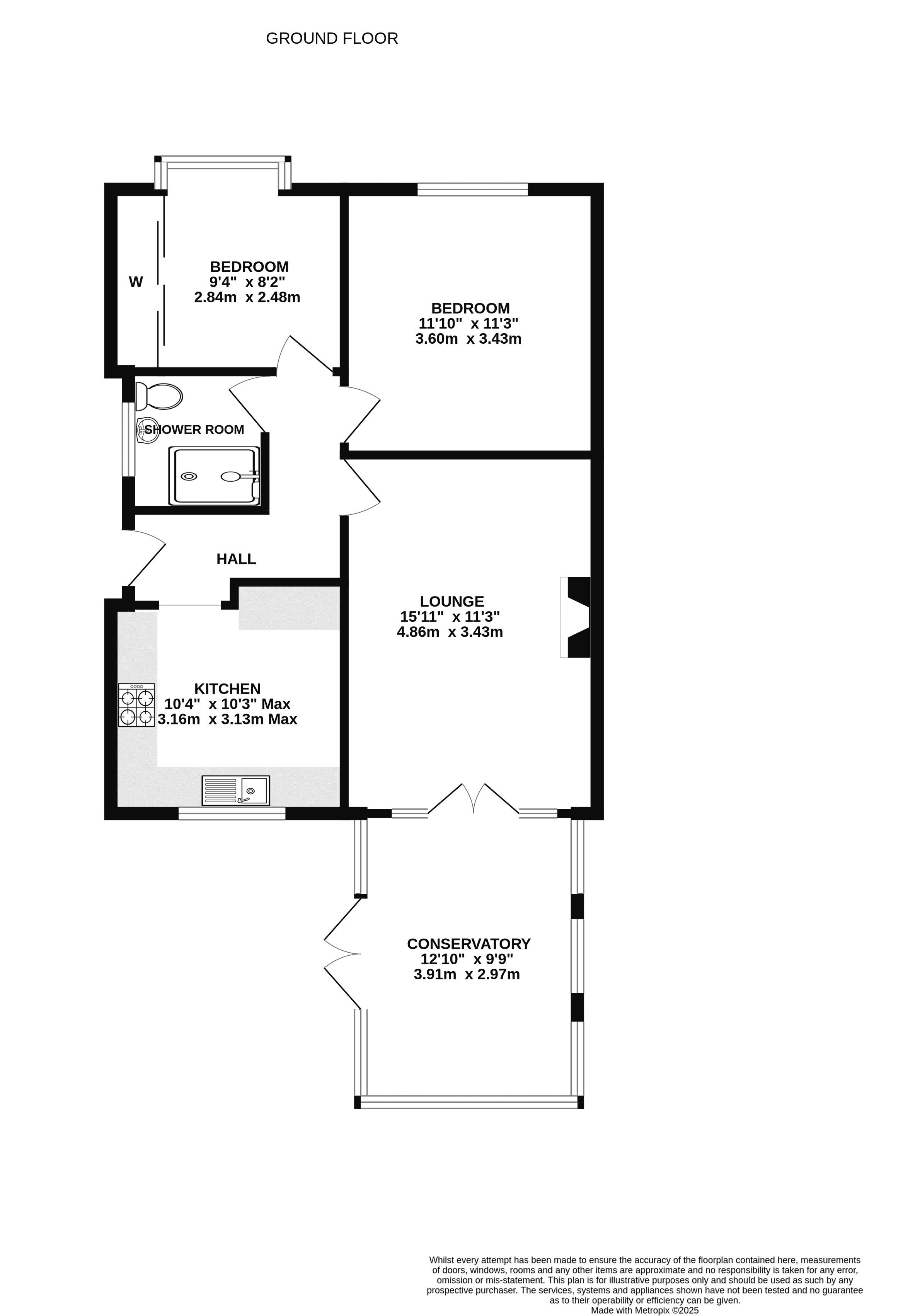
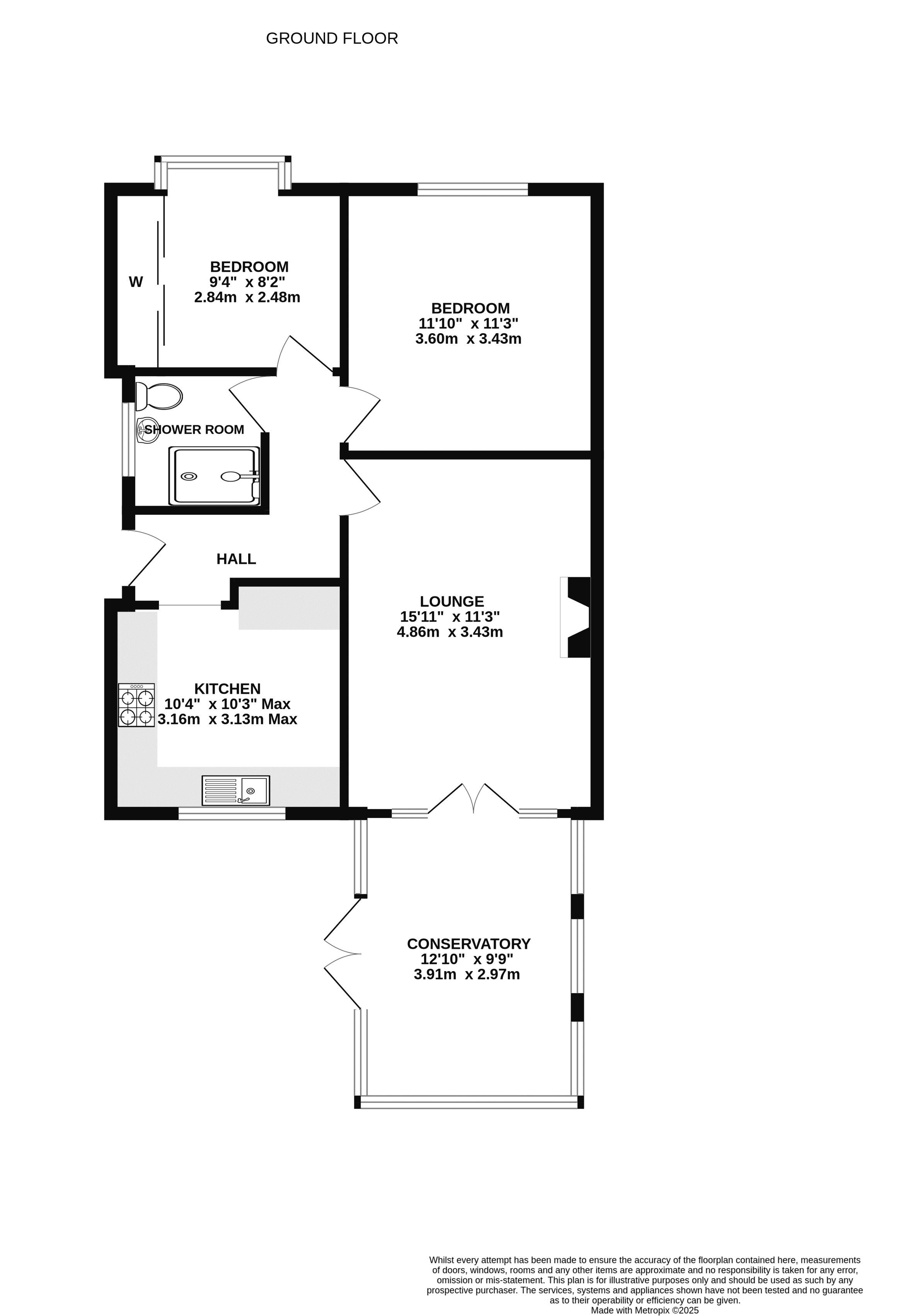
Beautiful Two-Bedroom Semi-Detached Bungalow in Quiet Old Catton Cul-de-Sac – Offered With No Onward Chain. Set within a peaceful cul-de-sac in the highly desirable area of Old Catton, this well-presented two-bedroom semi-detached bungalow is offered with no onward chain and is ideal for those seeking single-storey living in a convenient and attractive location. The accommodation comprises a welcoming entrance hall giving access to all internal rooms. The kitchen/breakfast room is fitted with a range of wall and base units with work surfaces over, together with a practical breakfast bar. The spacious lounge features a charming fireplace and French doors leading into the uPVC conservatory, which enjoys lovely views over the rear garden. There are two bedrooms, both benefitting from fitted wardrobes, along with a modern shower room, completing the internal layout. Outside, the property offers a generous driveway providing ample off-road parking for multiple vehicles and access to a single garage. There is a small front garden, while the private, enclosed rear garden is mainly laid to lawn with brick-weave patio areas and a decked seating area—perfect for relaxing or entertaining. Ideally positioned within easy reach of local schools, shops and public transport, this superb bungalow should not be missed. CALL NOW TO VIEW
Read more
Beautiful Two-Bedroom Semi-Detached Bungalow in Quiet Old Catton Cul-de-Sac – Offered With No Onward Chain. Set within a peaceful cul-de-sac in the highly desirable area of Old Catton, this well-presented two-bedroom semi-detached bungalow is offered with no onward chain and is ideal for those seeking single-storey living in a convenient and attractive location. The accommodation comprises a welcoming entrance hall giving access to all internal rooms. The kitchen/breakfast room is fitted with a range of wall and base units with work surfaces over, together with a practical breakfast bar. The spacious lounge features a charming fireplace and French doors leading into the uPVC conservatory, which enjoys lovely views over the rear garden. There are two bedrooms, both benefitting from fitted wardrobes, along with a modern shower room, completing the internal layout. Outside, the property offers a generous driveway providing ample off-road parking for multiple vehicles and access to a single garage. There is a small front garden, while the private, enclosed rear garden is mainly laid to lawn with brick-weave patio areas and a decked seating area—perfect for relaxing or entertaining. Ideally positioned within easy reach of local schools, shops and public transport, this superb bungalow should not be missed. CALL NOW TO VIEW
Beautiful Two-Bedroom Semi-Detached Bungalow in Quiet Old Catton Cul-de-Sac – No Onward Chain. Set within a peaceful cul-de-sac in the highly desirable area of Old Catton, this well-presented two-bedroom semi-detached bungalow is offered with no onward chain and is ideal for those seeking single-storey living in a convenient and attractive location. The accommodation comprises a welcoming entrance hall giving access to all internal rooms. The kitchen/breakfast room is fitted with a range of wall and base units with work surfaces over, together with a practical breakfast bar. The spacious lounge features a charming fireplace and French doors leading into the uPVC conservatory, which enjoys lovely views over the rear garden. There are two bedrooms, both benefitting from fitted wardrobes, along with a modern shower room, completing the internal layout. Outside, the property offers a generous driveway providing ample off-road parking for multiple vehicles and access to a single garage. There is a small front garden, while the private, enclosed rear garden is mainly laid to lawn with brick-weave patio areas and a decked seating area—perfect for relaxing or entertaining. Ideally positioned within easy reach of local schools, shops and public transport, this superb bungalow should not be missed. CALL NOW TO VIEW
Read less
Important Information
- This is a Freehold property.
| Well Presented Semi Detached Bungalow |
Two Bedrooms |
| Kitchen/Breakfast Room |
Spacious Lounge |
| Conservatory |
Shower Room |
| Garage & Ample Parking |
Private Enclosed Rear Garden |
| Offered With No Onward Chain |
Epc Rating D/ Council Tax Band B |