4 bedroom House for rent in Norwich

 

Sidney Bunn Way, Drayton, Norwich

£1,850pcm

4 Bedroom House

Ref: EAXML11851_12188821

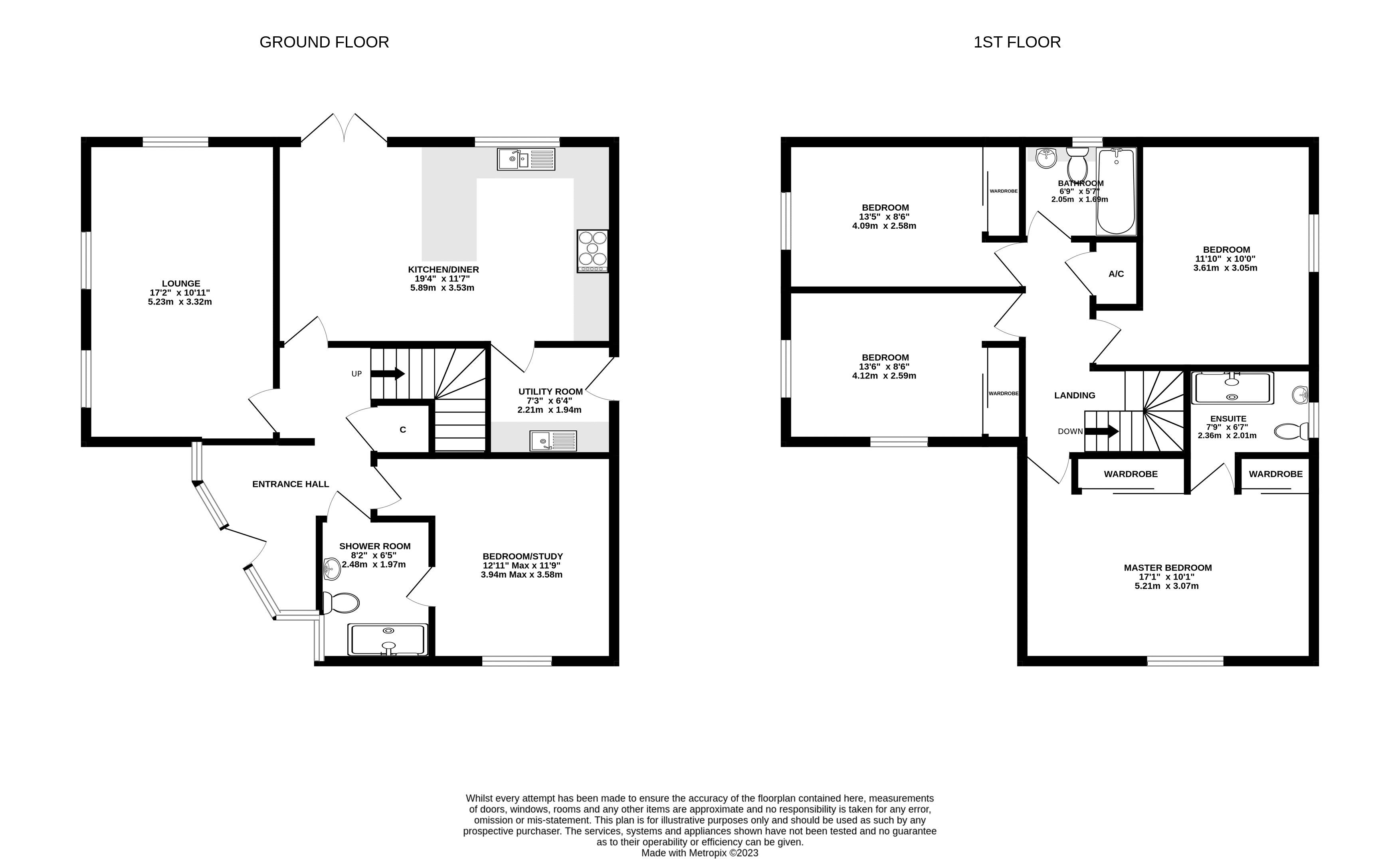
***EXECUTIVE DETACHED FAMILY HOME BUILT IN 2021*** Iconic estate agents are delighted to bring to the market, this deceptively spacious 4/5 bedroom detached family home situated in a desirable Drayton location. The property is offered with NO ONWARD CHAIN and boasts deceptively spacious accommodation throughout. The accommodation comprises; generous entrance hall with a tiled floor which offers underfloor heating, stairs rising to the first floor and doors to all the downstairs rooms. The light and airy 17ft lounge offers dual aspect windows, there is also a 12ft study/fifth double bedroom which again boasts underfloor heating and a three piece “jack and jill” en-suite shower room which also offer access to the entrance hall. The downstairs accommodation further offers a 19ft open plan luxury kitchen/diner which boasts integrated appliances a breakfast bar and French doors to the rear garden and is completed by the separate utility room which houses the gas combi boiler and a sink and worksurface. Upstairs there are four generous double bedrooms and a three piece family bathroom suite off the landing. All of the bedrooms offer fitted wardrobes and the 17ft master bedroom further boasts a luxury three piece, en-suite shower room. Outside the property offers a double garage and double driveway while to the rear there is a larger than average enclosed garden which is mostly laid to lawn. The property further benefits from underfloor heating throughout the downstairs, solid oak doors, solar panels, the balance of the NHBC certificate and a luxurious finish throughout! The property is situated on the edge of this modern development in Drayton and is easily accessible to the local schools, shops and amenities that Drayton has to offer. We strongly advise internal viewings to avoid disappointment, so call Iconic today to book your appointment.


Read more
Executive Detached Family Home Four/Five Double Bedrooms & Two En-Suite Shower Rooms
Kitchen/Diner With Utility Room Spacious Dual Aspect Lounge
Study/Bedroom Five Generous Enclosed Garden
Double Garage & Driveway Requested Drayton Location
Early Viewing Highly Recommended EPC Rating B / Council Tax Band E

epc

Iconic

Iconic

297 Fakenham Road

Taverham

Norwich

Norfolk

NR8 6LE

United Kingdom

Tel: 01603 261104
E-Mail: contactus@iconic.uk.com

Arrange a Viewing Videoette Brochure EPC Printable Details Request a Phone Call Request Details E-Mail Agent
Update Cookies Preferences