4 bedroom House for rent in Norwich

 

Shillgate Way, Taverham, Norwich

£1,400pcm

4 Bedroom House

Ref: EAXML11851_9108783

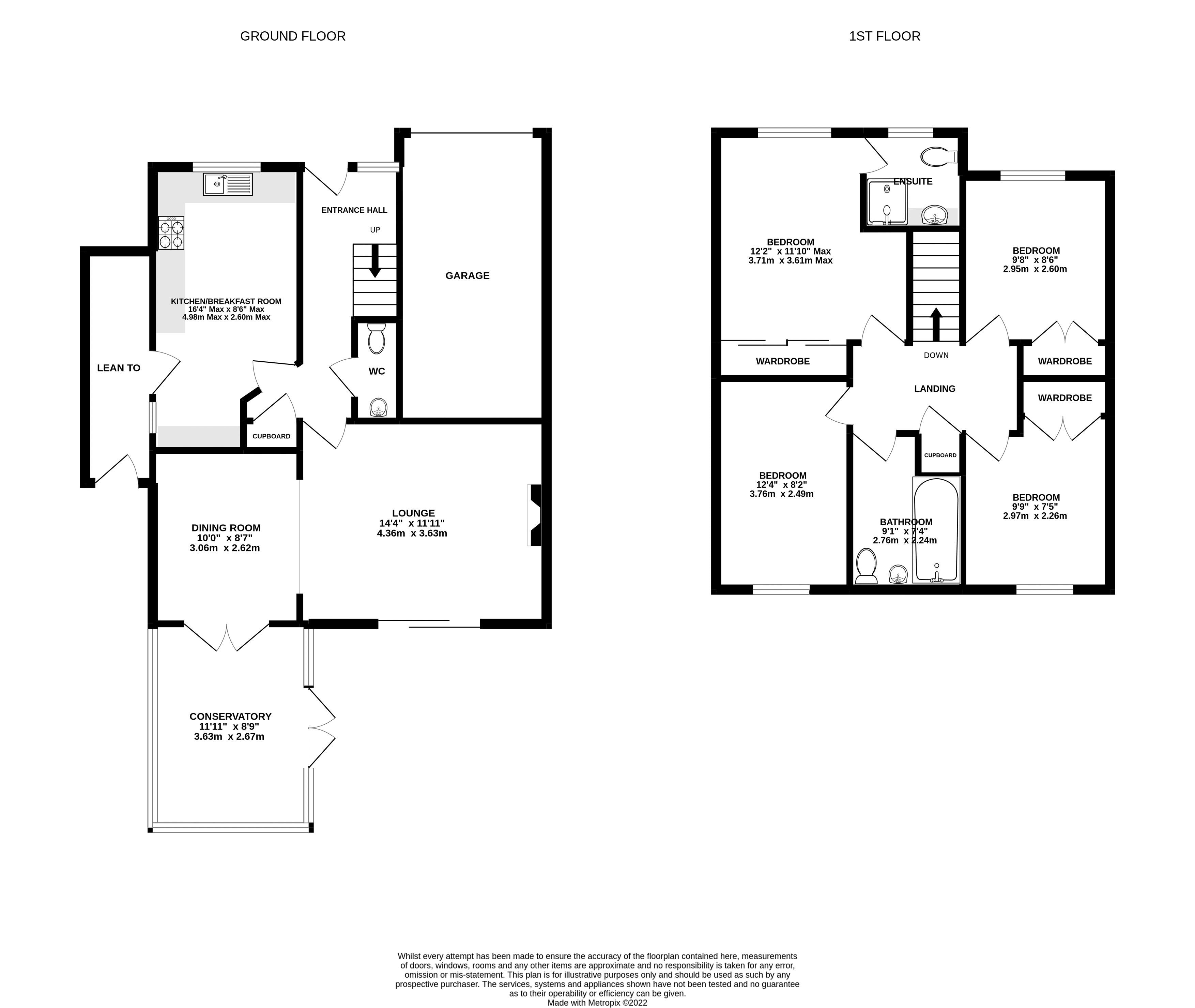
***READY TO RENT*** Iconic estate agents are delighted to offer to let, this well presented modern detached family home in Thorpe Marriott. The property offers accommodation which comprises; entrance hall with a cloak room and stairs rising to the first floor, kitchen/breakfast room with a utility area and a separate lean to room. Furthermore, there is a spacious lounge and separate dining room along with a uPVC conservatory which completes the downstairs accommodation. Upstairs there are four bedrooms off the landing and a modern family bathroom suite with the master bedroom boasting an en-suite shower room. Outside the property offers a driveway and integral garage to the front while to the rear there is an enclosed lawn garden. We strongly advise an internal viewing to avoid disappointment so call Iconic today.


Read more
Detached House Four Bedrooms With Master En-Suite
Kitchen/Breakfast Room Lounge
Separate Dining Room Conservatory
Family Bathroom Suite Enclosed Rear Garden
Garage & Driveway EPC Rating C / Council Tax Band D

epc

Iconic

Iconic

297 Fakenham Road

Taverham

Norwich

Norfolk

NR8 6LE

United Kingdom

Tel: 01603 261104
E-Mail: contactus@iconic.uk.com

Arrange a Viewing Videoette Brochure EPC Printable Details Request a Phone Call Request Details E-Mail Agent
Update Cookies Preferences