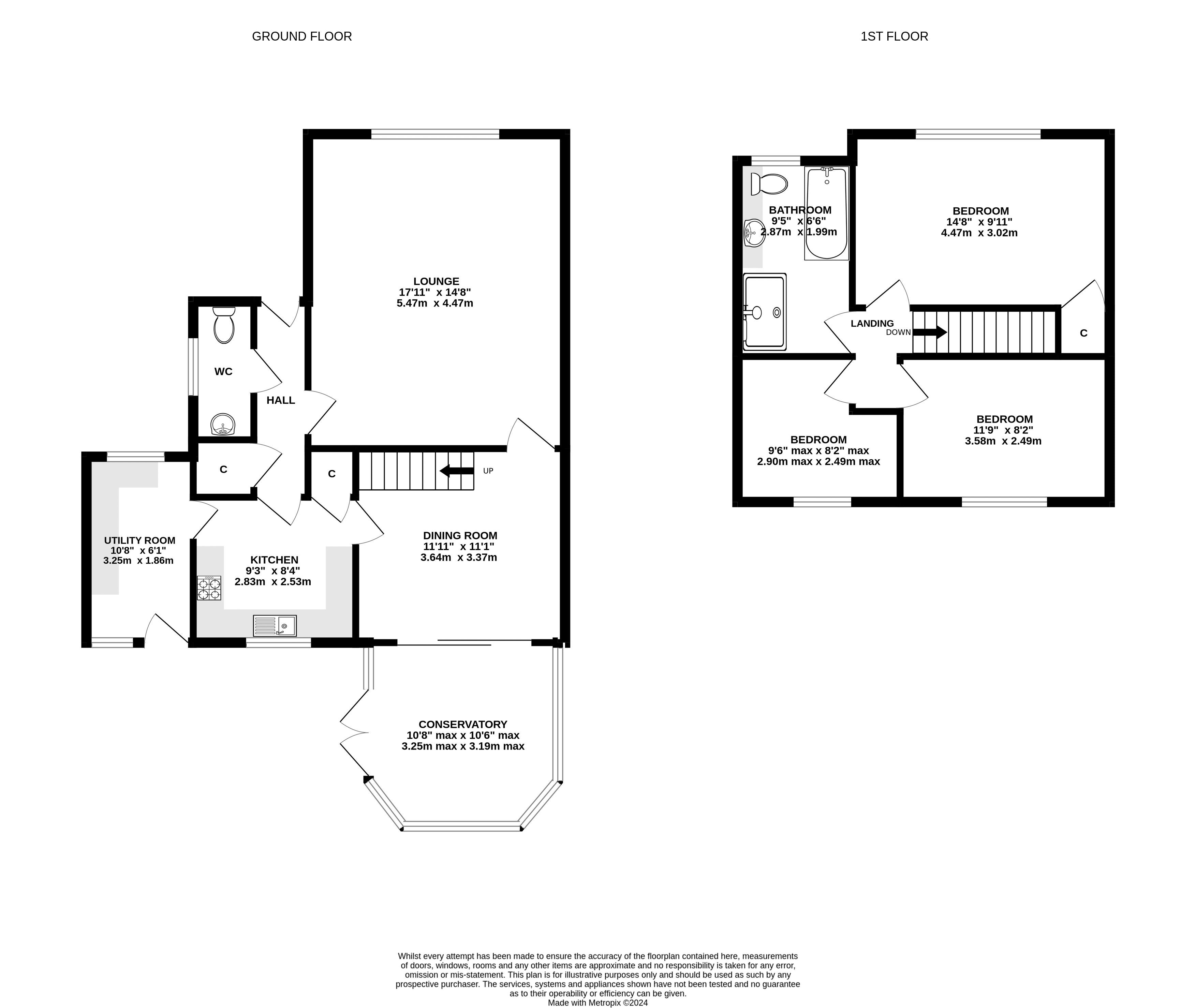
***WELL PRESENTED DETACHED FAMILY HOME*** Iconic estate agents are pleased to offer for let, this well presented detached property situated in a desirable Taverham position close to the local schools and amenities. The property offers accommodation which comprises; entrance hall with cloak room, doors leading through to the extended 17ft lounge, dining room with stairs rising to the first floor and patio doors to the conservatory. The is a fitted kitchen with a range of wall and base units with work surface over and a recently re-fitted utility room which houses the gas central heating boiler. Upstairs there are three bedrooms off the landing with two being generous doubles and a recently re-fitted four piece family bathroom suite. Outside to the front the property is accessed via a pedestrian pathway and has a lawn garden while to the rear there is a generous enclosed garden mostly laid to lawn with a patio and gated access to the rear driveway and garage. Please call iconic today to get your tenancy application form.
Read more
***WELL PRESENTED DETACHED FAMILY HOME*** Iconic estate agents are pleased to offer for let, this well presented detached property situated in a desirable Taverham position close to the local schools and amenities. The property offers accommodation which comprises; entrance hall with cloak room, doors leading through to the extended 17ft lounge, dining room with stairs rising to the first floor and patio doors to the conservatory. The is a fitted kitchen with a range of wall and base units with work surface over and a recently re-fitted utility room which houses the gas central heating boiler. Upstairs there are three bedrooms off the landing with two being generous doubles and a recently re-fitted four piece family bathroom suite. Outside to the front the property is accessed via a pedestrian pathway and has a lawn garden while to the rear there is a generous enclosed garden mostly laid to lawn with a patio and gated access to the rear driveway and garage. Please call iconic today to get your tenancy application form.
Read less
| Well Presented Detached Family Home |
Three Bedrooms |
| Extended 17ft Lounge |
Dining Room & Conservatory |
| Kitchen & Re-Fitted Utility Room |
Re-Fitted Four Piece Family Bathroom Suite |
| Generous Garden |
Garage & Driveway |
| Sought After Taverham Position |
Epc Rating D / Council Tax Band D |